
賃貸条件
| 所在階 | 5階内装付 |
|---|---|
| 用途 | 事務所、店舗 |
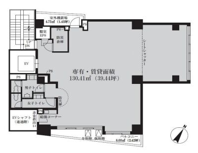
| 面積 | 39.44坪 / 130.38m² |
| 賃料 | 相談 |
| 共益費 | 相談 |
| 坪単価 | - |
| 預託金 | 5ヶ月 |
| 入居時期 | 2026年7月上旬 |
| その他費用 | 償却: なし 礼金: 1ヶ月 更新料・再契約料: 1ヶ月 |
| 天井高 | 3,390mm |
| トイレ | 男女別 |
| 床仕様 | OAフロア |
物件概要
| 所在地 | 東京都千代田区神田神保町1丁目22-2 |
|---|---|
| 交通 |
|
| 規模 | 地上11階建て |
| 竣工 | 2022年5月 |
| 耐震基準 | 新耐震基準 |
| 構造 | 鉄骨(S造) |
| 基準階坪数 | 39.62坪 |
物件詳細・設備
| エレベーター | 2基 |
|---|---|
| 情報通信設備 | 光ファイバー |
| 空調 | 個別空調 |
※表⽰⾦額は、敷⾦・保証⾦などの預かり⾦を除き、別途消費税がかかります。 / ※間取図は現況を優先させていただきます。 / ※駐車場は建物設備としての有無のため、有の場合でも賃貸条件としての空きを保証するものではありません。 / ※掲載情報の誤りや変更、未掲載情報の掲載依頼がございましたら、お手数ですが お問い合わせフォームよりご連絡ください。
近隣の条件が近い物件
掲載物件数:2,388件
4,334区画






















