浅草トーセイビル 9階

最終情報更新日:2025/12/18
ビルコード:1310600578
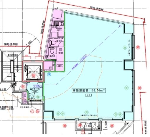
浅草トーセイビル 9階 平面図

賃貸条件

所在階9階
用途事務所、店舗
面積32.89坪 / 108.72m²
賃料相談
共益費賃料に含む
坪単価-
預託金10ヶ月
入居時期即入居
その他費用更新料・再契約料: なし
天井高2,600mm
トイレ男女別
その他事務所仕様/店舗利用可(物販・サービス)/軽飲食相談/看板設置スペースあり(掲出費無償)

物件概要

所在地東京都台東区浅草1丁目27-2
交通
  • つくばエクスプレス 浅草駅 2分
  • 東京メトロ銀座線 浅草駅 6分
規模地上10階建て
竣工2025年1月
耐震基準新耐震基準
構造鉄骨(S造)
基準階天井高2,600mm

物件詳細・設備

エレベーター1基
空調個別空調

浅草トーセイビルの空室一覧

↓ 募集区画クリックで詳細情報をご覧いただけます

募集区画面積用途賃料+共益費坪単価(共益費込)入居時期平面図お気に入り
9階32.89坪事務所、店舗相談-即入居
8階32.89坪事務所、店舗相談-即入居
7階32.89坪事務所、店舗相談-即入居

※表⽰⾦額は、敷⾦・保証⾦などの預かり⾦を除き、別途消費税がかかります。 / ※間取図は現況を優先させていただきます。 / ※駐車場は建物設備としての有無のため、有の場合でも賃貸条件としての空きを保証するものではありません。 / ※掲載情報の誤りや変更、未掲載情報の掲載依頼がございましたら、お手数ですが お問い合わせフォームよりご連絡ください。

近隣の条件が近い物件

東京都台東区浅草2丁目33-3

地上10階建て

33.84坪

JR中央・総武線 浅草橋駅 5分

東京都台東区花川戸1丁目2-8

地上9階建て

37.0坪

都営浅草線 浅草駅 1分

東京都台東区東上野2丁目10-12

地上5階建て

32.31坪

JR山手線 上野駅 5分

東京都台東区東上野2丁目22-6

地上7階建て

33.5坪

JR山手線 上野駅 6分

東京都台東区台東4丁目18-11

地上5階建て

31.99坪

東京メトロ日比谷線 仲御徒町駅 3分

東京都台東区入谷1丁目2-3

地上8階建て

36.85坪

東京メトロ日比谷線 入谷駅 3分

東京都台東区東上野1丁目26-2

地上7階 / 地下3階

29.7坪

都営大江戸線 新御徒町駅 2分

東京都台東区浅草1丁目17-4

地上10階建て

21.98坪

東京メトロ銀座線 浅草駅 3分

東京都台東区東上野4丁目2-3

地上9階建て

28.5坪

JR山手線 上野駅 3分

東京都千代田区神田佐久間町3丁目19

地上8階建て

33.77坪 〜 34.14坪

JR山手線 秋葉原駅 4分

東京都千代田区外神田5丁目1-5

地上9階建て

33.78坪

東京メトロ銀座線 末広町駅 1分

東京都台東区浅草橋1丁目34-10

地上8階建て

29.68坪

JR中央・総武線 浅草橋駅 3分

東京都台東区根岸3丁目6-3

地上8階建て

36.5坪

JR山手線 鶯谷駅 3分

東京都千代田区岩本町3丁目7-15

地上11階建て

32.04坪

都営新宿線 岩本町駅 3分

東京都文京区湯島3丁目13-8

地上10階建て

33.0坪

東京メトロ千代田線 湯島駅 2分

東京都千代田区神田和泉町1-3-13

地上6階建て

35.27坪

JR山手線 秋葉原駅 3分

東京都千代田区神田佐久間町3丁目38

地上9階 / 地下1階

31.0坪

JR山手線 秋葉原駅 2分

東京都文京区湯島2丁目25-7

地上8階 / 地下1階

33.96坪

東京メトロ千代田線 湯島駅 4分

東京都千代田区東神田2丁目10-9

地上8階建て

35.2坪

東京メトロ日比谷線 秋葉原駅 8分

掲載物件数:2,447件  4,449区画

お気に入りに追加