浅草トーセイビル 8階

最終情報更新日:2025/10/02
ビルコード:1310600578
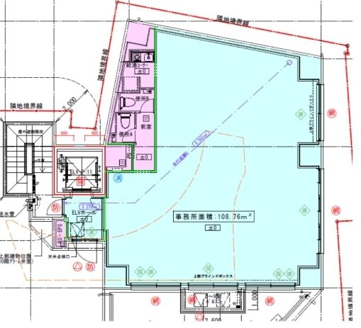
浅草トーセイビル 8階 平面図

賃貸条件

所在階8階
用途事務所、店舗
面積32.89坪 / 108.72m²
賃料相談
共益費賃料に含む
坪単価-
預託金10ヶ月
入居時期即入居
その他費用更新料・再契約料: なし
天井高2,600mm
トイレ男女別
その他事務所仕様/店舗利用可(物販・サービス)/軽飲食相談/看板設置スペースあり(掲出費無償)

物件概要

所在地東京都台東区浅草1丁目27-2
交通
  • つくばエクスプレス 浅草駅 2分
  • 東京メトロ銀座線 浅草駅 6分
規模地上10階建て
竣工2025年1月
耐震基準新耐震基準
構造鉄骨(S造)
基準階天井高2,600mm

物件詳細・設備

エレベーター1基
空調個別空調

浅草トーセイビルの空室一覧

↓ 募集区画クリックで詳細情報をご覧いただけます

募集区画面積用途賃料+共益費坪単価(共益費込)入居時期平面図お気に入り
10偕32.89坪事務所、店舗相談-即入居
9階32.89坪事務所、店舗相談-即入居
8階32.89坪事務所、店舗相談-即入居
7階32.89坪事務所、店舗相談-即入居
5階32.89坪事務所、店舗相談-即入居

※表⽰⾦額は、敷⾦・保証⾦などの預かり⾦を除き、別途消費税がかかります。 / ※間取図は現況を優先させていただきます。 / ※駐車場は建物設備としての有無のため、有の場合でも賃貸条件としての空きを保証するものではありません。 / ※掲載情報の誤りや変更、未掲載情報の掲載依頼がございましたら、お手数ですが お問い合わせフォームよりご連絡ください。

近隣の条件が近い物件

東京都台東区松が谷4丁目2-1

地上10階 / 地下1階

32.67坪

つくばエクスプレス 浅草駅 5分

東京都台東区花川戸1丁目2-8

地上9階建て

37.0坪

都営浅草線 浅草駅 1分

東京都台東区東上野2丁目10-12

地上5階建て

32.31坪

JR山手線 上野駅 5分

東京都台東区柳橋2丁目21-9

地上12階建て

31.95坪

JR中央・総武線 浅草橋駅 6分

東京都台東区入谷1丁目2-3

地上8階建て

36.85坪

東京メトロ日比谷線 入谷駅 3分

東京都台東区松が谷4丁目24-11

地上11階建て

39.38坪

東京メトロ銀座線 浅草駅 7分

東京都台東区浅草1丁目17-4

地上10階建て

21.98坪

東京メトロ銀座線 浅草駅 3分

東京都台東区東上野3丁目1-10

地上9階建て

27.76坪

JR山手線 上野駅 8分

東京都千代田区神田佐久間町3丁目37-4

地上6階建て

33.54坪

JR山手線 秋葉原駅 4分

東京都台東区台東1丁目4-10

地上6階建て

35.0坪

JR山手線 御徒町駅 6分

東京都千代田区神田佐久間町3丁目19

地上8階建て

33.77坪 〜 34.14坪

JR山手線 秋葉原駅 4分

東京都台東区台東1丁目10-6

地上9階建て

34.6坪

JR山手線 秋葉原駅 4分

東京都台東区上野3丁目14-1

地上7階 / 地下1階

34.59坪

東京メトロ銀座線 末広町駅 3分

東京都台東区台東4丁目13-21

地上9階 / 地下1階

28.86坪

東京メトロ日比谷線 仲御徒町駅 2分

東京都台東区竜泉2丁目20-6

地上6階建て

29.55坪

東京メトロ日比谷線 三ノ輪駅 2分

東京都台東区雷門2丁目19-16

地上9階建て

44.14坪

都営浅草線 浅草駅 1分

東京都千代田区岩本町3丁目7-15

地上11階建て

32.04坪

都営新宿線 岩本町駅 3分

東京都中央区東日本橋2丁目4-1

地上7階建て

32.83坪

都営浅草線 東日本橋駅 1分

掲載物件数:2,246件  4,166区画

お気に入りに追加