日本ビルディング本館 1階

最終情報更新日:2025/09/06
ビルコード:1310203970
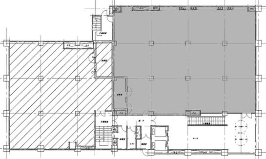
日本ビルディング本館 1階 平面図

賃貸条件

所在階1階
用途事務所
面積82.61坪 / 273.09m²
賃料相談
共益費313,918円
坪単価-
預託金相談
入居時期即入居
その他費用償却: なし
更新料・再契約料: なし

物件概要

所在地東京都中央区日本橋茅場町1丁目2-4
交通
  • 東京メトロ東西線 茅場町駅 3分
規模地上7階 / 地下1階
竣工1958年5月
構造鉄筋コンクリート(RC造)
基準階坪数210.13坪
基準階天井高2,550mm
延床面積7,071.78㎡

物件詳細・設備

エレベーター2基
駐車場なし
情報通信設備光ファイバー
空調個別空調
セキュリティ有人管理

日本ビルディング本館の空室一覧

↓ 募集区画クリックで詳細情報をご覧いただけます

募集区画面積用途賃料+共益費坪単価(共益費込)入居時期平面図お気に入り
1階82.61坪事務所相談-即入居

※表⽰⾦額は、敷⾦・保証⾦などの預かり⾦を除き、別途消費税がかかります。 / ※間取図は現況を優先させていただきます。 / ※駐車場は建物設備としての有無のため、有の場合でも賃貸条件としての空きを保証するものではありません。 / ※掲載情報の誤りや変更、未掲載情報の掲載依頼がございましたら、お手数ですが お問い合わせフォームよりご連絡ください。

近隣の条件が近い物件

東京都中央区日本橋茅場町2丁目17-7

地上9階建て

82.4坪

東京メトロ東西線 茅場町駅 2分

東京都中央区新川1丁目3-17

地上10階 / 地下1階

83.1坪

東京メトロ日比谷線 茅場町駅 3分

東京都中央区日本橋3丁目14-1

地上9階 / 地下1階

82.95坪

都営浅草線 日本橋駅 3分

東京都中央区日本橋茅場町2丁目9-8

地上10階 / 地下1階

80.68坪

東京メトロ日比谷線 茅場町駅 1分

東京都中央区日本橋兜町22-6

地上6階建て

81.47坪

東京メトロ東西線 日本橋駅 5分

東京都中央区日本橋小網町10-2

地上8階 / 地下1階

86.06坪

東京メトロ日比谷線 茅場町駅 5分

東京都中央区日本橋室町1丁目12-15

地上7階 / 地下1階

82.31坪

東京メトロ半蔵門線 三越前駅 1分

東京都中央区日本橋箱崎町44-7

地上7階建て

81.76坪

東京メトロ半蔵門線 水天宮前駅 3分

東京都中央区日本橋大伝馬町6-5

地上9階建て

83.0坪

東京メトロ日比谷線 小伝馬町駅 2分

東京都中央区八丁堀3丁目20-4

地上12階建て

80.3坪

JR京葉線 八丁堀駅 1分

東京都中央区日本橋茅場町1丁目8-3

地上8階 / 地下1階

77.06坪

東京メトロ日比谷線 茅場町駅 1分

東京都中央区日本橋蛎殻町1丁目29-4

地上10階 / 地下1階

77.93坪

東京メトロ半蔵門線 水天宮前駅 1分

東京都中央区東日本橋2丁目1-1

地上3階建て

82.37坪

都営浅草線 東日本橋駅 1分

東京都中央区新川1丁目22-11

地上9階 / 地下1階

87.05坪

東京メトロ日比谷線 茅場町駅 6分

東京都中央区日本橋人形町1丁目8-4

地上8階 / 地下1階

89.27坪

東京メトロ日比谷線 人形町駅 1分

東京都中央区日本橋横山町3-13

地上6階 / 地下1階

80.0坪

都営新宿線 馬喰横山駅 1分

東京都中央区日本橋本町1-3

地上18階 / 地下1階

88.75坪

東京メトロ銀座線 三越前駅 3分

東京都中央区東日本橋2丁目22-1

地上8階建て

84.27坪

都営浅草線 東日本橋駅 3分

掲載物件数:2,242件  4,156区画

お気に入りに追加