
賃貸条件
| 所在階 | 6階 |
|---|---|
| 用途 | 事務所 |
| 面積 | 39.82坪 / 131.63m² |
| 賃料 | 597,300円 |
| 共益費 | 賃料に含む |
| 坪単価 | 15,000円/坪(共益費込) |
| 預託金 | 8ヶ月 |
| 入居時期 | 2025年12月中旬 |
| その他費用 | 償却: 2ヶ月 更新料・再契約料: 1ヶ月 |
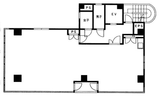
| トイレ | 男女別 |
物件概要
| 所在地 | 東京都台東区浅草橋1丁目24-3 |
|---|---|
| 交通 |
|
| 規模 | 地上8階建て |
| 竣工 | 1986年3月 |
| 耐震基準 | 新耐震基準 |
| 構造 | 鉄骨鉄筋コンクリート(SRC造) |
| 基準階坪数 | 39.82坪 |
物件詳細・設備
| エレベーター | 1基 |
|---|---|
| 駐車場 | なし |
| 情報通信設備 | 光ファイバー |
| 空調 | 個別空調 |
| セキュリティ | 機械警備 |
杉木立ビルの空室一覧
↓ 募集区画クリックで詳細情報をご覧いただけます
| 募集区画 | 面積 | 用途 | 賃料+共益費 | 坪単価(共益費込) | 入居時期 | 平面図 | お気に入り |
|---|---|---|---|---|---|---|---|
| 6階 | 39.82坪 | 事務所 | 597,300円 | 15,000円/坪 | 2025年12月中旬 |
※表⽰⾦額は、敷⾦・保証⾦などの預かり⾦を除き、別途消費税がかかります。 / ※間取図は現況を優先させていただきます。 / ※駐車場は建物設備としての有無のため、有の場合でも賃貸条件としての空きを保証するものではありません。 / ※掲載情報の誤りや変更、未掲載情報の掲載依頼がございましたら、お手数ですが お問い合わせフォームよりご連絡ください。
近隣の条件が近い物件
掲載物件数:2,356件
4,306区画




















