NEW

ヒューリック両国ビル 5階

最終情報更新日:2026/01/05
ビルコード:1310700145
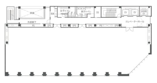
ヒューリック両国ビル 5階 平面図

賃貸条件

所在階5階
用途事務所
面積168.12坪 / 555.76m²
賃料相談
共益費相談
坪単価-
預託金相談
入居時期相談
天井高2,800mm
トイレ男女別
床仕様OAフロア

物件概要

所在地東京都墨田区両国4丁目31-11
交通
  • JR中央・総武線 両国駅 2分
規模地上9階 / 地下1階
竣工2010年1月
耐震基準新耐震基準
構造
基準階天井高2,800mm
延床面積7,441.0㎡

物件詳細・設備

エレベーター3基
駐車場あり 機械式23台 自走式3台
空調個別空調
セキュリティ機械警備

ヒューリック両国ビルの空室一覧

↓ 募集区画クリックで詳細情報をご覧いただけます

募集区画面積用途賃料+共益費坪単価(共益費込)入居時期平面図お気に入り
NEW5階168.12坪事務所相談-相談

※表⽰⾦額は、敷⾦・保証⾦などの預かり⾦を除き、別途消費税がかかります。 / ※間取図は現況を優先させていただきます。 / ※駐車場は建物設備としての有無のため、有の場合でも賃貸条件としての空きを保証するものではありません。 / ※掲載情報の誤りや変更、未掲載情報の掲載依頼がございましたら、お手数ですが お問い合わせフォームよりご連絡ください。

近隣の条件が近い物件

東京都中央区日本橋大伝馬町14-15

地上9階 / 地下2階

170.27坪

総武線(快速) 馬喰町駅 3分

東京都千代田区神田相生町1

地上16階 / 地下2階

169.33坪

JR山手線 秋葉原駅 1分

東京都千代田区外神田1丁目8-13

地上7階 / 地下1階

168.25坪

JR中央・総武線 秋葉原駅 3分

東京都台東区東上野5丁目24-8

地上11階 / 地下2階

169.05坪

東京メトロ銀座線 稲荷町駅 6分

東京都中央区日本橋2丁目1-14

地上10階 / 地下1階

166.65坪

東京メトロ銀座線 日本橋駅 1分

東京都中央区八丁堀2丁目119番地3他(地番)

地上10階 / 地下1階

168.95坪

東京メトロ日比谷線 八丁堀駅 2分

東京都千代田区内神田3丁目6-2

地上19階 / 地下1階

165.44坪

JR山手線 神田駅 1分

東京都千代田区丸の内1丁目6-6

地上28階 / 地下4階

168.39坪

JR山手線 東京駅 1分

東京都墨田区江東橋2丁目3-7

地上9階 / 地下1階

159.05坪

総武線(快速) 錦糸町駅 6分

東京都江東区木場5丁目5-2

地上9階 / 地下1階

170.24坪

東京メトロ東西線 木場駅 1分

東京都中央区日本橋浜町1丁目12-9

地上9階建て

153.75坪

都営新宿線 浜町駅 5分

東京都中央区八重洲1丁目9

地上51階 / 地下4階

164.2坪

JR山手線 東京駅 0分

掲載物件数:2,413件  4,380区画

お気に入りに追加