
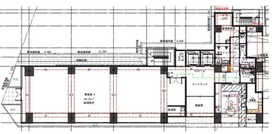
賃貸条件
| 所在階 | 1階 |
|---|---|
| 用途 | 事務所、店舗 |
| 面積 | 54.62坪 / 180.56m² |
| 賃料 | 相談 |
| 共益費 | 賃料に含む |
| 坪単価 | - |
| 預託金 | 10ヶ月 |
| 入居時期 | 即入居 |
| その他費用 | 更新料・再契約料: なし |
| 天井高 | 2,600mm |
| トイレ | 男女別 |
| その他 | 飲食不可・ガス無し |
物件概要
| 所在地 | 東京都江東区佐賀1丁目4-9 |
|---|---|
| 交通 |
|
| 規模 | 地上9階 / 地下1階 |
| 竣工 | 2024年4月 |
| 耐震基準 | 新耐震基準 |
| 構造 | 鉄筋コンクリート(RC造) |
| 基準階坪数 | 84.65坪 |
| 基準階天井高 | 2,600mm |
物件詳細・設備
| エレベーター | 2基 |
|---|---|
| 駐車場 | あり 7台 |
| 空調 | 個別空調 |
| セキュリティ | 機械警備 |
※表⽰⾦額は、敷⾦・保証⾦などの預かり⾦を除き、別途消費税がかかります。 / ※間取図は現況を優先させていただきます。 / ※駐車場は建物設備としての有無のため、有の場合でも賃貸条件としての空きを保証するものではありません。 / ※掲載情報の誤りや変更、未掲載情報の掲載依頼がございましたら、お手数ですが お問い合わせフォームよりご連絡ください。
近隣の条件が近い物件
掲載物件数:2,402件
4,364区画


















































































