
賃貸条件
| 所在階 | 8階 |
|---|---|
| 用途 | 事務所 |
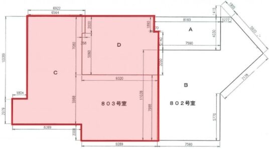
| 面積 | 69.71坪 / 230.44m² |
| 賃料 | 1,394,200円 |
| 共益費 | 賃料に含む |
| 坪単価 | 20,000円/坪(共益費込) |
| 預託金 | 10ヶ月 |
| 入居時期 | 2026年4月上旬 |
| その他費用 | 償却: なし 礼金: なし |
| トイレ | 男女別 |
| 床仕様 | OAフロア・タイルカーペット |
物件概要
| 所在地 | 東京都港区新橋2丁目20-15 |
|---|---|
| 交通 |
|
| 規模 | 地上9階 / 地下5階 |
| 竣工 | 1966年8月 |
| 構造 | 鉄骨鉄筋コンクリート(SRC造) |
| 基準階坪数 | 261.92坪 |
| 基準階天井高 | 2,500mm |
| 延床面積 | 31,947.25㎡ |
物件詳細・設備
| エレベーター | 5基 |
|---|---|
| 駐車場 | あり |
| 情報通信設備 | 光ファイバー |
| 空調 | セントラル空調・個別空調 |
| セキュリティ | 有人管理 |
| リニューアル履歴 | 2018年 耐震補強工事済 |
新橋駅前ビル壱号館(新橋駅前ビル1号館)の空室一覧
↓ 募集区画クリックで詳細情報をご覧いただけます
| 募集区画 | 面積 | 用途 | 賃料+共益費 | 坪単価(共益費込) | 入居時期 | 平面図 | お気に入り |
|---|---|---|---|---|---|---|---|
| NEW8階803 | 69.71坪 | 事務所 | 1,394,200円 | 20,000円/坪 | 2026年4月上旬 |
※表⽰⾦額は、敷⾦・保証⾦などの預かり⾦を除き、別途消費税がかかります。 / ※間取図は現況を優先させていただきます。 / ※駐車場は建物設備としての有無のため、有の場合でも賃貸条件としての空きを保証するものではありません。 / ※掲載情報の誤りや変更、未掲載情報の掲載依頼がございましたら、お手数ですが お問い合わせフォームよりご連絡ください。
近隣の条件が近い物件
掲載物件数:2,434件
4,403区画





















建物詳細
新橋駅前ビル1号館(港区新橋2丁目)は、JR山手線 新橋駅徒歩1分の賃貸オフィスビルです。
ビルの竣工は1966年8月、建物規模は地上9階・地下5階建てです。エレベーターは5基あります。
基準階貸室面積は261.92坪です。設備面では個別空調・OAフロア・男女別トイレなどの設備仕様となっております。
最新の空室状況や賃料・賃貸条件など、お気軽にお問合せ下さい。