香雅堂品川ビル 3階

北ふ頭橋交差点至近で視認性良好。用途等ご相談!
最終情報更新日:2026/02/25
ビルコード: 1310900438
外観 外観
外観 外観
1階室内 1階室内
外観
外観
1階室内
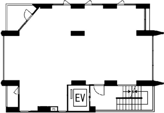
香雅堂品川ビル 3階 平面図
建物詳細

香雅堂品川ビル(読み:こがどうしながわビル、東京都品川区東品川3丁目27-17)は、2025年竣工、地上5階建てのオフィス・店舗貸ビル物件です。北ふ頭橋交差点至近で視認性良好。業種・用途等につきましてもお気軽にご相談ください。

賃貸条件

所在階 3階
用途 事務所
面積 26.98坪 / 89.19m²
賃料 593,560円
共益費 賃料に含む
坪単価 22,000円/坪 (共益費込)
預託金 6ヶ月
入居時期 即入居
その他費用 償却: 1ヶ月
礼金: なし
更新料・再契約料: 新賃料1ヶ月
天井高 2,510mm
その他 スケルトン

物件概要

所在地 東京都品川区東品川3丁目27-17
交通
  • りんかい線 品川シーサイド駅 5分
  • 京急本線 青物横丁駅 6分
規模 地上5階 / 地下1階
竣工 2025年6月
耐震基準 新耐震基準
構造 鉄筋コンクリート(RC造)

物件詳細・設備

エレベーター 1基
駐車場 なし

香雅堂品川ビルの空室一覧

↓ 募集区画クリックで詳細情報をご覧いただけます

募集区画 面積 用途 賃料+共益費 坪単価(共益費込) 入居時期 平面図 お気に入り
4階 25.2坪 事務所 554,400円 22,000円/坪 即入居
3階 26.98坪 事務所 593,560円 22,000円/坪 即入居

近隣の条件が近い物件

東京都品川区東品川4丁目12-6

地上22階 / 地下2階

25.87坪

りんかい線 品川シーサイド駅 1分

東京都品川区東品川2丁目2-20

地上25階 / 地下2階

23.75坪

東京モノレール 天王洲アイル駅 1分

東京都品川区北品川5丁目5-15

地上20階 / 地下2階

31.21坪

JR山手線 大崎駅 5分

東京都品川区西五反田7丁目22-17

地上13階 / 地下3階

25.1坪 〜 27.62坪

東急池上線 大崎広小路駅 5分

東京都品川区西五反田7丁目16-3

地上5階建て

27.61坪

JR山手線 五反田駅 7分

東京都品川区東五反田3丁目14-13

地上6階建て

23.52坪

JR山手線 五反田駅 8分

東京都江東区青梅2丁目4-32

地上19階 / 地下1階

28.68坪 〜 28.97坪

ゆりかもめ テレコムセンター駅 2分

東京都大田区大森北1丁目4-1

地上8階建て

25.95坪

JR京浜東北線 大森駅 1分

東京都品川区西五反田7丁目21-11

地上8階 / 地下2階

25.28坪

東急目黒線 不動前駅 5分

東京都大田区平和島6丁目1-1 東京流通センターセンタービル

地上11階 / 地下2階

26.18坪

東京モノレール 流通センター駅 1分

※表示金額はすべて「税抜き表示」となっています。 / ※間取図は現況を優先させていただきます。 / ※駐車場は建物設備としての有無のため、有の場合でも賃貸条件としての空きを保証するものではありません。 / ※掲載情報の誤りや変更、未掲載情報の掲載依頼がございましたら、お手数ですが お問い合わせフォーム よりご連絡ください。

掲載物件数:2,401件  4,312区画

お気に入りに追加