Fierte髙波(フェルテ高波) 2階

最終情報更新日:2025/10/10
ビルコード:1311302762
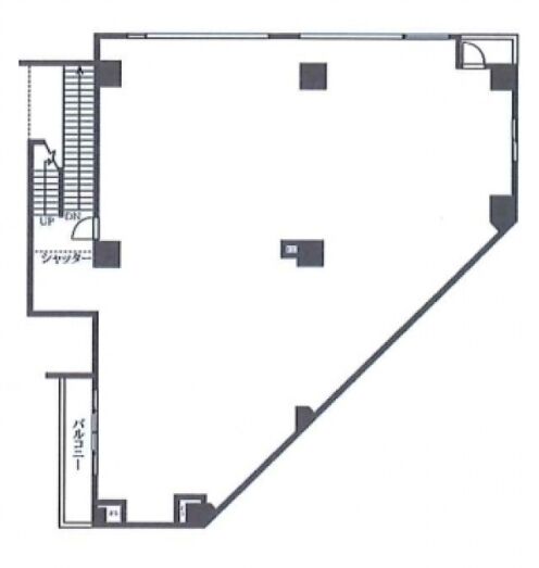
Fierte髙波(フェルテ高波) 2階 平面図

賃貸条件

所在階2階
用途店舗
面積81.49坪 / 269.42m²
賃料2,689,500円
共益費244,500円
坪単価36,000円/坪(共益費込)
預託金14ヶ月
入居時期即入居
その他費用償却: 20%
礼金: なし
更新料・再契約料: 1ヶ月

物件概要

所在地東京都渋谷区恵比寿1丁目11-4
交通
  • JR山手線 恵比寿駅 2分
  • 東京メトロ日比谷線 恵比寿駅 4分
  • 東急東横線 代官山駅 12分
規模地上10階 / 地下1階
竣工2005年5月
耐震基準新耐震基準
構造鉄骨鉄筋コンクリート(SRC造)

物件詳細・設備

エレベーター1基
駐車場なし

Fierte髙波(フェルテ高波)の空室一覧

↓ 募集区画クリックで詳細情報をご覧いただけます

募集区画面積用途賃料+共益費坪単価(共益費込)入居時期平面図お気に入り
2階81.49坪店舗2,934,000円36,000円/坪即入居

※表⽰⾦額は、敷⾦・保証⾦などの預かり⾦を除き、別途消費税がかかります。 / ※間取図は現況を優先させていただきます。 / ※駐車場は建物設備としての有無のため、有の場合でも賃貸条件としての空きを保証するものではありません。 / ※掲載情報の誤りや変更、未掲載情報の掲載依頼がございましたら、お手数ですが お問い合わせフォームよりご連絡ください。

近隣の条件が近い物件

東京都渋谷区代官山13-1

地上2階 / 地下1階

79.58坪

東急東横線 代官山駅 4分

東京都渋谷区東3丁目11-10

地上9階 / 地下2階

85.3坪

JR山手線 恵比寿駅 4分

東京都渋谷区広尾1丁目1-39

地上22階 / 地下3階

75.15坪

JR山手線 恵比寿駅 6分

東京都渋谷区恵比寿1丁目15-1

地上6階建て

70.37坪

JR山手線 恵比寿駅 4分

東京都目黒区中目黒2丁目10-15

地上8階建て

75.33坪

東京メトロ日比谷線 中目黒駅 7分

東京都渋谷区東3丁目13-11

地上10階 / 地下2階

91.65坪

JR山手線 恵比寿駅 6分

東京都港区白金台3丁目19-6

地上7階建て

85.77坪

都営三田線 白金台駅 5分

東京都品川区上大崎1丁目23-16

地上6階建て

86.0坪

JR山手線 目黒駅 9分

東京都港区高輪2丁目19-17

地上10階建て

80.86坪

都営浅草線 泉岳寺駅 1分

東京都品川区西五反田2丁目7-11

地上11階 / 地下1階

79.0坪

JR山手線 五反田駅 1分

東京都品川区西五反田7丁目22-17

地上13階 / 地下3階

82.64坪

東急池上線 大崎広小路駅 5分

東京都目黒区目黒1丁目6-17

地上14階 / 地下2階

73.61坪

JR山手線 目黒駅 6分

東京都港区高輪3丁目19-26

地上9階建て

79.46坪

JR山手線 品川駅 6分

東京都目黒区目黒1丁目4-16

地上6階建て

72.59坪

JR山手線 目黒駅 2分

東京都渋谷区恵比寿1丁目18-18

地上9階 / 地下1階

99.23坪

JR山手線 恵比寿駅 4分

掲載物件数:2,243件  4,118区画

お気に入りに追加