NEW

The Fellow Bunkyo 7階

最終情報更新日:2026/03/04
ビルコード: 1310500276
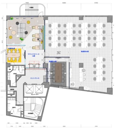
The Fellow Bunkyo 7階 平面図

賃貸条件

所在階 7階 内装付
用途 事務所
面積 84.95坪 / 280.82m²
賃料 1,699,000円
共益費 賃料に含む
坪単価 20,000円/坪 (共益費込)
預託金 3ヶ月
入居時期 2026年7月上旬
その他費用 償却: なし
礼金: なし
更新料・再契約料: なし
トイレ 男女別
その他 ハーフセットアップ

物件概要

所在地 東京都文京区大塚5丁目3-13
交通
  • 東京メトロ丸ノ内線 新大塚駅 5分
  • 東京メトロ有楽町線 護国寺駅 8分
規模 地上8階 / 地下2階
竣工 1987年7月
耐震基準 新耐震基準
構造 鉄骨鉄筋コンクリート(SRC造)
基準階坪数 107.29坪
基準階天井高 2,450mm

物件詳細・設備

エレベーター 2基
駐車場 あり 16台
情報通信設備 光ファイバー
空調 個別空調
セキュリティ 機械警備
リニューアル履歴 2025年7月 エントランス・共有部 大規模リニューアル済

The Fellow Bunkyoの空室一覧

↓ 募集区画クリックで詳細情報をご覧いただけます

募集区画 面積 用途 賃料+共益費 坪単価(共益費込) 入居時期 平面図 お気に入り
NEW 7階 内装付 84.95坪 事務所 1,699,000円 20,000円/坪 2026年7月上旬

近隣の条件が近い物件

東京都文京区音羽2丁目10-2

地上9階 / 地下1階

80.42坪

東京メトロ有楽町線 護国寺駅 2分

東京都豊島区南池袋2丁目49-4

地上7階 / 地下1階

86.5坪

JR山手線 池袋駅 8分

東京都豊島区南池袋2丁目27-8

地上9階 / 地下1階

86.4坪

JR山手線 池袋駅 2分

東京都豊島区東池袋5丁目44-15

地上7階 / 地下1階

76.14坪

JR山手線 大塚駅 5分

東京都豊島区東池袋3丁目1-1

地上60階 / 地下4階

78.65坪

東京メトロ有楽町線 東池袋駅 3分

東京都豊島区東池袋1丁目25-6

地上12階建て

91.98坪

JR山手線 池袋駅 5分

東京都文京区大塚5丁目7-12

地上10階建て

104.5坪

東京メトロ丸ノ内線 新大塚駅 1分

東京都千代田区九段南2丁目1-30

地上12階 / 地下2階

84.45坪

東京メトロ東西線 九段下駅 8分

東京都豊島区南池袋2丁目28-13

地上8階 / 地下2階

94.87坪

JR山手線 池袋駅 5分

東京都千代田区四番町2-12

地上8階 / 地下1階

84.75坪

JR中央・総武線 市ケ谷駅 7分

東京都新宿区西新宿7丁目5-25

地上16階 / 地下2階

84.18坪

西武新宿線 西武新宿駅 3分

東京都千代田区二番町3-10

地上9階 / 地下1階

84.85坪

東京メトロ有楽町線 麹町駅 1分

東京都文京区小日向4丁目2-6

地上9階 / 地下2階

71.06坪

東京メトロ丸ノ内線 茗荷谷駅 5分

東京都新宿区四谷1丁目13

地上4階 / 地下2階

84.6坪

JR中央・総武線 四ツ谷駅 3分

東京都豊島区南大塚2丁目25-15

地上12階 / 地下1階

106.38坪

東京メトロ丸ノ内線 新大塚駅 1分

東京都豊島区西池袋3丁目28-1

地上8階 / 地下1階

76.42坪

JR山手線 池袋駅 4分

東京都新宿区新宿3丁目1-16

地上12階 / 地下1階

86.18坪

東京メトロ丸ノ内線 新宿三丁目駅 1分

東京都新宿区四谷4丁目3

地上9階建て

86.85坪

東京メトロ丸ノ内線 四谷三丁目駅 3分

※表示金額はすべて「税抜き表示」となっています。 / ※間取図は現況を優先させていただきます。 / ※駐車場は建物設備としての有無のため、有の場合でも賃貸条件としての空きを保証するものではありません。 / ※掲載情報の誤りや変更、未掲載情報の掲載依頼がございましたら、お手数ですが お問い合わせフォーム よりご連絡ください。

掲載物件数:2,399件  4,320区画

お気に入りに追加