NEW
THE CROSS 日本橋人形町(旧:FT日本橋久松町ビル) 5階
清洲橋通り沿いのリニューアルオフィス。1階はセブンイレブンです!
最終情報更新日:2025/12/08
ビルコード:1310203660

賃貸条件
| 所在階 | 5階内装付 |
|---|---|
| 用途 | 事務所 |
| 面積 | 60.95坪 / 201.48m² |
| 賃料 | 1,401,850円 |
| 共益費 | 賃料に含む |
| 坪単価 | 23,000円/坪(共益費込) |
| 預託金 | 6ヶ月 |
| 入居時期 | 2026年6月上旬 |
| その他費用 | 償却: なし 礼金: なし 更新料・再契約料: なし |
| 天井高 | 3,270mm |
| トイレ | 男女別 |
| 床仕様 | OAフロア |
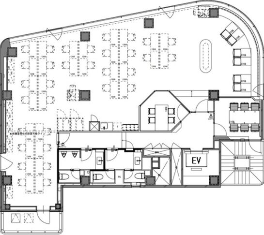
| その他 | 会議室(2室)・テレカンブース(2台)・執務室什器設置済み(28席) |
物件概要
| 所在地 | 東京都中央区日本橋久松町10-6 |
|---|---|
| 交通 |
|
| 規模 | 地上9階建て |
| 竣工 | 1988年11月 |
| 耐震基準 | 新耐震基準 |
| 構造 | 鉄骨(S造) |
| 基準階坪数 | 59.6坪 |
| 基準階天井高 | 2,445mm |
物件詳細・設備
| エレベーター | 1基 |
|---|---|
| 駐車場 | あり |
| 情報通信設備 | 光ファイバー(MDFまで) |
| 空調 | 個別空調 |
| セキュリティ | 機械警備 |
| リニューアル履歴 | 2023年2月 エントランスリニューアル、屋上テラス完成
2023年6月 貸室内セットアップオフィスへリニューアル |
THE CROSS 日本橋人形町(旧:FT日本橋久松町ビル)の空室一覧
↓ 募集区画クリックで詳細情報をご覧いただけます
| 募集区画 | 面積 | 用途 | 賃料+共益費 | 坪単価(共益費込) | 入居時期 | 平面図 | お気に入り |
|---|---|---|---|---|---|---|---|
| NEW5階内装付 | 60.95坪 | 事務所 | 1,401,850円 | 23,000円/坪 | 2026年6月上旬 |
※表⽰⾦額は、敷⾦・保証⾦などの預かり⾦を除き、別途消費税がかかります。 / ※間取図は現況を優先させていただきます。 / ※駐車場は建物設備としての有無のため、有の場合でも賃貸条件としての空きを保証するものではありません。 / ※掲載情報の誤りや変更、未掲載情報の掲載依頼がございましたら、お手数ですが お問い合わせフォームよりご連絡ください。
近隣の条件が近い物件
掲載物件数:2,381件
4,325区画


















