NEW

Y's Coral Build(Y'sコーラルビル) 5階

最終情報更新日:2026/04/01
ビルコード: 1310103088
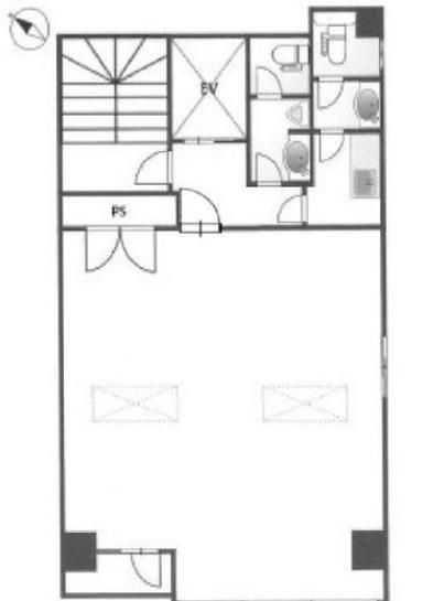
Y's Coral Build(Y'sコーラルビル) 5階 平面図

賃貸条件

所在階 5階
用途 事務所
面積 21.54坪 / 71.23m²
賃料 310,000円
共益費 40,000円
坪単価 16,249円/坪 (共益費込)
預託金 4ヶ月
入居時期 即入居
その他費用 償却: なし
礼金: 1ヶ月
更新料・再契約料: 1ヶ月
トイレ 男女別
床仕様 OAフロア・タイルカーペット

物件概要

所在地 東京都千代田区神田神保町2丁目20-13
交通
  • 東京メトロ半蔵門線 神保町駅 2分
  • 東京メトロ半蔵門線 九段下駅 5分
  • JR中央・総武線 水道橋駅 9分
規模 地上7階建て
竣工 1989年1月
耐震基準 新耐震基準
構造 鉄骨鉄筋コンクリート(SRC造)
基準階坪数 21.54坪

物件詳細・設備

エレベーター 1基
情報通信設備 光ファイバー
空調 個別空調
セキュリティ 機械警備

Y's Coral Build(Y'sコーラルビル)の空室一覧

↓ 募集区画クリックで詳細情報をご覧いただけます

募集区画 面積 用途 賃料+共益費 坪単価(共益費込) 入居時期 平面図 お気に入り
NEW 5階 21.54坪 事務所 350,000円 16,249円/坪 即入居
NEW 4階 21.54坪 事務所 350,000円 16,249円/坪 即入居

近隣の条件が近い物件

東京都千代田区神田神保町2丁目5-11

地上8階 / 地下1階

20.18坪

東京メトロ半蔵門線 神保町駅 1分

東京都千代田区神田神保町2丁目17

地上10階建て

23.7坪

東京メトロ半蔵門線 神保町駅 1分

東京都千代田区神田駿河台2丁目11-16

地上11階建て

22.42坪

JR中央・総武線 水道橋駅 4分

東京都千代田区九段北1丁目8-2

地上5階 / 地下1階

19.9坪

東京メトロ東西線 九段下駅 2分

東京都千代田区神田神保町3丁目4-29

地上8階建て

18.47坪

東京メトロ東西線 九段下駅 1分

東京都千代田区神田錦町3丁目19-4

地上10階建て

22.86坪

東京メトロ東西線 竹橋駅 3分

東京都千代田区九段南1丁目6-5

地上17階 / 地下3階

23.71坪

東京メトロ東西線 九段下駅 1分

東京都千代田区神田猿楽町2丁目2-6

地上7階建て

18.05坪

東京メトロ半蔵門線 神保町駅 5分

東京都千代田区神田錦町3丁目15-5

地上9階 / 地下1階

23.0坪

東京メトロ東西線 竹橋駅 3分

東京都千代田区九段北1丁目4-5

地上9階 / 地下1階

18.6坪

東京メトロ東西線 九段下駅 2分

東京都千代田区飯田橋4丁目5-16

地上10階建て

22.5坪

東京メトロ東西線 飯田橋駅 3分

東京都千代田区神田神保町1丁目13-16

地上4階建て

16.91坪

東京メトロ半蔵門線 神保町駅 2分

東京都千代田区西神田2丁目1-8

地上12階建て

16.59坪

JR中央・総武線 水道橋駅 5分

東京都千代田区九段北1丁目13-1

地上7階建て

18.43坪

東京メトロ半蔵門線 九段下駅 2分

東京都千代田区飯田橋4丁目7-11

地上10階 / 地下1階

20.34坪

JR中央・総武線 飯田橋駅 3分

東京都千代田区飯田橋1丁目7-4

地上6階建て

24.0坪

JR中央・総武線 飯田橋駅 4分

東京都文京区湯島2丁目2-16

地上8階建て

21.95坪

JR中央・総武線 御茶ノ水駅 7分

東京都千代田区神田神保町3丁目7

地上9階 / 地下1階

26.73坪

東京メトロ半蔵門線 九段下駅 2分

※表示金額はすべて「税抜き表示」となっています。 / ※間取図は現況を優先させていただきます。 / ※駐車場は建物設備としての有無のため、有の場合でも賃貸条件としての空きを保証するものではありません。 / ※掲載情報の誤りや変更、未掲載情報の掲載依頼がございましたら、お手数ですが お問い合わせフォーム よりご連絡ください。

掲載物件数:2,347件  4,225区画

お気に入りに追加