安田8号ビル 1階~7階(募集終了)
2025年12月大規模リニューアル予定!貨物用EV・高床式プラットフォームを備えたオフィスビル!
最終情報更新日:2025/08/27
ビルコード:1310303932
賃貸条件
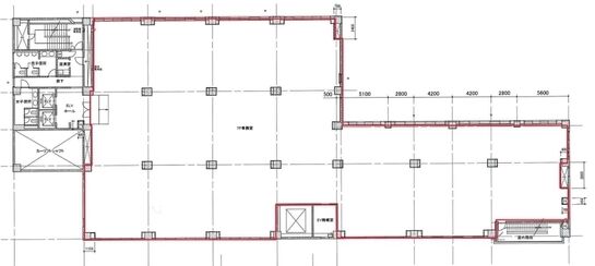
| 所在階 | 1階〜7階 |
|---|---|
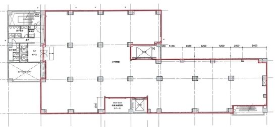
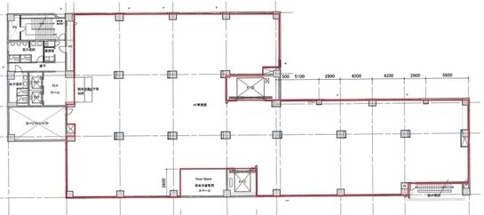
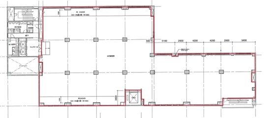
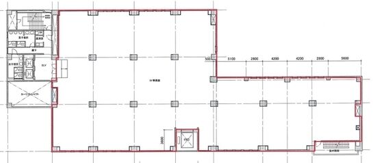
| 面積 | 1,785.14坪 / 5901.28m² |
※募集終了区画です。最新の空室状況は こちら からご確認下さい。 | |
物件概要
| 所在地 | 東京都港区海岸3丁目2-8 |
|---|---|
| 交通 |
|
| 規模 | 地上7階 / 地下1階 |
| 竣工 | 1979年11月 |
| 構造 | 鉄骨鉄筋コンクリート(SRC造) |
| 基準階坪数 | 283.47坪 |
| 延床面積 | 8,074.77㎡ |
物件詳細・設備
| エレベーター | 4基 |
|---|---|
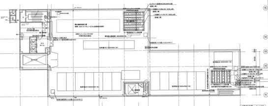
| 駐車場 | あり 計76台(全ハイルーフ可、建物屋上26台+隣地平置き50台) |
| 空調 | 個別空調 |
| セキュリティ | 機械警備 |
| 建物設備 | トラックヤード、プラットフォーム、来客用駐車場(共用) |
| リニューアル履歴 | 2007年 耐震改修実施済
2026年6月末竣工 リニューアル工事 |
※表⽰⾦額は、敷⾦・保証⾦などの預かり⾦を除き、別途消費税がかかります。 / ※間取図は現況を優先させていただきます。 / ※駐車場は建物設備としての有無のため、有の場合でも賃貸条件としての空きを保証するものではありません。 / ※掲載情報の誤りや変更、未掲載情報の掲載依頼がございましたら、お手数ですが お問い合わせフォームよりご連絡ください。
近隣の条件が近い物件
掲載物件数:2,314件
4,257区画





























担当者からのコメント
2025年12 月末に大規模リニューアル工事が竣工の1棟貸し物件です! 貨物用エレベーター、高床式プラットフォームを備えたオフィスビル、事務所使用だけではなく、空調付の軽作業場や軽倉庫としてご利用可能です。