市ヶ谷キャナルコート(旧:市ヶ谷テーブルメディアセンター) 1階102(募集終了)
共用の野外テラス、お洒落なロビーなどが新たに設置された大規模リノベーションオフィス!
最終情報更新日:2025/10/15
ビルコード:1310401860
賃貸条件
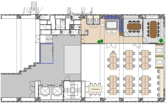
| 所在階 | 1階内装付 |
|---|---|
| 面積 | 80.66坪 / 266.64m² |
※募集終了区画です。最新の空室状況は こちら からご確認下さい。 | |
物件概要
| 所在地 | 東京都新宿区市谷本村町2-21 |
|---|---|
| 交通 |
|
| 規模 | 地上9階建て |
| 竣工 | 1992年3月 |
| 耐震基準 | 新耐震基準 |
| 構造 | 鉄骨鉄筋コンクリート(SRC造) |
| 基準階坪数 | 169.0坪 |
物件詳細・設備
| エレベーター | 2基 |
|---|---|
| 駐車場 | あり |
| 情報通信設備 | 光ファイバー |
| 空調 | 個別空調 |
| リニューアル履歴 | 2025年9月 大規模リノベーション完了(7階ルーフバルコニーに共用アウトドアスペース設置、セットアップオフィス化・エントランスリノベーション) |
※表⽰⾦額は、敷⾦・保証⾦などの預かり⾦を除き、別途消費税がかかります。 / ※間取図は現況を優先させていただきます。 / ※駐車場は建物設備としての有無のため、有の場合でも賃貸条件としての空きを保証するものではありません。 / ※掲載情報の誤りや変更、未掲載情報の掲載依頼がございましたら、お手数ですが お問い合わせフォームよりご連絡ください。
近隣の条件が近い物件
掲載物件数:2,393件
4,351区画
























