NEW

五光ビル 2階

最終情報更新日:2025/10/09
ビルコード:1311200095
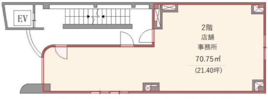
五光ビル 2階 平面図
建物詳細

五光ビル(世田谷区桜新町2丁目)は、桜新町駅から徒歩約2分の賃貸オフィスビルです。

建物は1986年4月竣工、規模は地上4階建てです。

最新の空室状況や賃料・賃貸条件など、お気軽にお問合せ下さい。

賃貸条件

所在階2階
用途事務所、店舗
面積21.3坪 / 70.41m²
賃料351,450円
共益費賃料に含む
坪単価16,500円/坪(共益費込)
預託金10ヶ月
入居時期相談
その他費用償却: 1ヶ月
更新料・再契約料: 新賃料1ヶ月

物件概要

所在地東京都世田谷区桜新町2丁目10-7
交通
  • 東急田園都市線 桜新町駅 2分
  • 東急田園都市線 用賀駅 11分
  • 東急世田谷線 上町駅 17分
規模地上4階建て
竣工1986年4月
耐震基準新耐震基準
構造鉄骨(S造)

物件詳細・設備

エレベーターなし

五光ビルの空室一覧

↓ 募集区画クリックで詳細情報をご覧いただけます

募集区画面積用途賃料+共益費坪単価(共益費込)入居時期平面図お気に入り
NEW2階21.3坪事務所、店舗351,450円16,500円/坪相談
1階24.88坪店舗663,455円26,666円/坪2025年11月上旬

※表⽰⾦額は、敷⾦・保証⾦などの預かり⾦を除き、別途消費税がかかります。 / ※間取図は現況を優先させていただきます。 / ※駐車場は建物設備としての有無のため、有の場合でも賃貸条件としての空きを保証するものではありません。 / ※掲載情報の誤りや変更、未掲載情報の掲載依頼がございましたら、お手数ですが お問い合わせフォームよりご連絡ください。

近隣の条件が近い物件

東京都世田谷区用賀4丁目10-3

地上6階 / 地下1階

22.55坪

東急田園都市線 用賀駅 3分

東京都世田谷区駒沢2丁目12-3

地上9階 / 地下1階

24.9坪

JR山手線 渋谷駅 7分

東京都世田谷区瀬田1丁目10-11

地上3階建て

17.79坪 〜 20.21坪

東急田園都市線 二子玉川駅 5分

東京都渋谷区笹塚1丁目59-6

地上8階建て

20.57坪

京王線 笹塚駅 3分

東京都渋谷区円山町28-4

地上6階 / 地下1階

20.48坪

京王井の頭線 神泉駅 3分

東京都渋谷区神泉町16-12

地上7階建て

21.3坪

京王井の頭線 神泉駅 2分

東京都渋谷区円山町5-18

地上5階建て

23.62坪

JR山手線 渋谷駅 6分

東京都渋谷区桜丘町20-12

地上3階建て

23.61坪

JR山手線 渋谷駅 5分

東京都渋谷区道玄坂1丁目19-13

地上10階 / 地下1階

24.15坪

京王井の頭線 神泉駅 3分

東京都渋谷区東2丁目23-14

地上6階建て

22.67坪

JR山手線 恵比寿駅 8分

東京都世田谷区太子堂5丁目2-5

地上5階建て

33.19坪

東急田園都市線 三軒茶屋駅 5分

東京都渋谷区道玄坂1丁目15-12

地上7階 / 地下1階

24.2坪

JR山手線 渋谷駅 5分

東京都渋谷区道玄坂1丁目19-12

地上10階建て

24.66坪

京王井の頭線 神泉駅 4分

東京都渋谷区恵比寿4丁目1-22

地上7階 / 地下1階

23.11坪

JR山手線 恵比寿駅 3分

東京都渋谷区恵比寿西2丁目7-3

地上9階 / 地下1階

23.61坪

JR山手線 恵比寿駅 5分

東京都品川区西五反田7丁目22-17

地上13階 / 地下3階

20.94坪

東急池上線 大崎広小路駅 5分

東京都品川区西五反田5丁目6-30

地上3階建て

23.1坪

東急目黒線 不動前駅 4分

掲載物件数:2,243件  4,118区画

お気に入りに追加