
賃貸条件
| 所在階 | 6階内装付 |
|---|---|
| 用途 | 事務所 |
| 面積 | 30.06坪 / 99.39m² |
| 賃料 | 631,260円 |
| 共益費 | 賃料に含む |
| 坪単価 | 21,000円/坪(共益費込) |
| 預託金 | 6ヶ月 |
| 入居時期 | 2026年4月上旬 |
| その他費用 | 償却: なし 更新料・再契約料: なし |
| 天井高 | 2,830mm |
| トイレ | 男女別 |
| 床仕様 | OAフロア |
物件概要
| 所在地 | 東京都中央区日本橋富沢町10-11 |
|---|---|
| 交通 |
|
| 規模 | 地上10階建て |
| 竣工 | 2021年10月 |
| 耐震基準 | 新耐震基準 |
| 構造 | 鉄骨(S造) |
物件詳細・設備
| エレベーター | 1基 |
|---|---|
| 駐車場 | なし |
| 空調 | 個別空調 |
| セキュリティ | 機械警備 |
※表⽰⾦額は、敷⾦・保証⾦などの預かり⾦を除き、別途消費税がかかります。 / ※間取図は現況を優先させていただきます。 / ※駐車場は建物設備としての有無のため、有の場合でも賃貸条件としての空きを保証するものではありません。 / ※掲載情報の誤りや変更、未掲載情報の掲載依頼がございましたら、お手数ですが お問い合わせフォームよりご連絡ください。
近隣の条件が近い物件
掲載物件数:2,379件
4,321区画



















建物詳細
TWG日本橋イーストⅡ(旧:LDB日本橋富沢町、中央区日本橋富沢町10-11)は、2021年10月竣工、地上10階建てのオフィスビルです。
最寄り駅は東京メトロ日比谷線「人形町」駅の他、都営浅草線「東日本橋」駅・都営新宿線「馬喰横山」駅からも徒歩5分のアクセスです。エレベーターは1基あります。
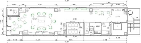
全フロアセットアップオフィス(内装付き)の仕様。基準階貸室面積はワンフロア約30坪。OAフロア・男女別トイレ・機械警備・個別空調などの設備がございます。
最新の空室状況や賃料・賃貸条件など、お気軽にお問合せ下さい。