NEW

ISM秋葉原 3階

2021年2月、エントランスリニューアル済のビルです!
最終情報更新日:2026/03/10
ビルコード: 1310600365
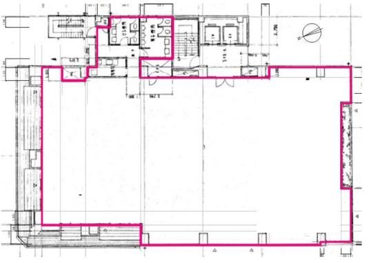
ISM秋葉原 3階 平面図

賃貸条件

所在階 3階
用途 事務所
面積 162.34坪 / 536.67m²
賃料 3,409,140円
共益費 相談
坪単価 -
預託金 8ヶ月
入居時期 2026年8月上旬
その他費用 礼金: なし
天井高 2,510mm
トイレ 男女別
床仕様 タイルカーペット

物件概要

所在地 東京都台東区台東1丁目24-2
交通
  • JR山手線 秋葉原駅 10分
  • 東京メトロ銀座線 末広町駅 10分
規模 地上7階 / 地下1階
竣工 1988年9月
耐震基準 新耐震基準
構造 鉄骨鉄筋コンクリート(SRC造)
基準階天井高 2,630mm

物件詳細・設備

エレベーター 2基
駐車場 あり 機械式
情報通信設備 光ファイバー
空調 個別空調
セキュリティ 機械警備
リニューアル履歴 2021年2月 エントランス・1F水まわりリニューアル済

ISM秋葉原の空室一覧

↓ 募集区画クリックで詳細情報をご覧いただけます

募集区画 面積 用途 賃料+共益費 坪単価(共益費込) 入居時期 平面図 お気に入り
NEW 3階 162.34坪 事務所 3,409,140円(共益費相談) - 2026年8月上旬
NEW 2階B 99.57坪 事務所 2,090,970円(共益費相談) - 2026年8月上旬

近隣の条件が近い物件

東京都千代田区神田相生町1

地上16階 / 地下2階

169.33坪

JR山手線 秋葉原駅 1分

東京都千代田区神田紺屋町15

地上10階 / 地下1階

166.73坪

JR山手線 神田駅 4分

東京都千代田区内神田3丁目6-2

地上19階 / 地下1階

165.44坪

JR山手線 神田駅 1分

東京都千代田区外神田1丁目8-13

地上7階 / 地下1階

168.97坪

JR中央・総武線 秋葉原駅 3分

東京都中央区日本橋本町1丁目6-1

地上10階 / 地下2階

159.81坪

東京メトロ銀座線 三越前駅 5分

東京都文京区本郷1丁目5-7

地上8階建て

164.0坪

都営三田線 水道橋駅 2分

東京都中央区八重洲1丁目9

地上51階 / 地下4階

162.71坪 〜 164.2坪

JR山手線 東京駅 0分

東京都中央区八重洲1丁目9

地上10階 / 地下2階

163.92坪

JR山手線 東京駅 0分

東京都中央区日本橋大伝馬町14-15

地上9階 / 地下2階

170.27坪

総武線(快速) 馬喰町駅 3分

東京都千代田区内神田1丁目31-11(地番)

地上26階 / 地下3階

157.5坪

東京メトロ丸ノ内線 大手町駅 3分

※表示金額はすべて「税抜き表示」となっています。 / ※間取図は現況を優先させていただきます。 / ※駐車場は建物設備としての有無のため、有の場合でも賃貸条件としての空きを保証するものではありません。 / ※掲載情報の誤りや変更、未掲載情報の掲載依頼がございましたら、お手数ですが お問い合わせフォーム よりご連絡ください。

掲載物件数:2,392件  4,303区画

お気に入りに追加