NEW

平田ビル(二番町) 1階

最終情報更新日:2026/03/11
ビルコード: 1310102797
平田ビル(二番町)外観① 平田ビル(二番町)外観①
平田ビル(二番町)外観② 平田ビル(二番町)外観②
ビルエントランス ビルエントランス
エントランスホール① エントランスホール①
エレベーター エレベーター
エントランスホール② エントランスホール②
ビル周辺風景① ビル周辺風景①
ビル周辺風景② ビル周辺風景②
ビル周辺風景③ ビル周辺風景③
平田ビル(二番町)外観①
平田ビル(二番町)外観②
ビルエントランス
エントランスホール①
エレベーター
エントランスホール②
ビル周辺風景①
ビル周辺風景②
ビル周辺風景③
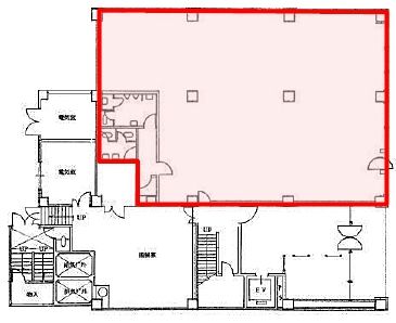
平田ビル(二番町) 1階 平面図
建物詳細

平田ビル(千代田区二番町)は、麹町駅徒歩3分の賃貸オフィスビルです。

建物の規模は地上7階・地下1階建て、竣工は1970年10月です。エレベーターは1基あります。

基準階のフロア面積は61坪、天井高は2380mmです。

最新の空室状況や賃料・賃貸条件など、お気軽にお問合せ下さい。

賃貸条件

所在階 1階
用途 事務所
面積 67.91坪 / 224.49m²
賃料 相談
共益費 賃料に含む
坪単価 -
預託金 10ヶ月
入居時期 2026年9月上旬
その他費用 償却: なし
礼金: なし
更新料・再契約料: なし
天井高 2,590mm
トイレ 男女別
床仕様 タイルカーペット

物件概要

所在地 東京都千代田区二番町2-12
交通
  • 東京メトロ有楽町線 麹町駅 3分
  • 東京メトロ半蔵門線 半蔵門駅 7分
規模 地上7階 / 地下1階
竣工 1970年10月
構造 鉄筋コンクリート(RC造)
基準階坪数 61.0坪
基準階天井高 2,380mm

物件詳細・設備

エレベーター 1基
駐車場 あり 平面式 9台
情報通信設備 光ファイバー
空調 個別空調
セキュリティ 機械警備

平田ビル(二番町)の空室一覧

↓ 募集区画クリックで詳細情報をご覧いただけます

募集区画 面積 用途 賃料+共益費 坪単価(共益費込) 入居時期 平面図 お気に入り
NEW 1階 67.91坪 事務所 相談 - 2026年9月上旬

近隣の条件が近い物件

東京都千代田区麹町2丁目2-3

地上9階建て

66.35坪

東京メトロ半蔵門線 半蔵門駅 1分

東京都千代田区平河町1丁目6-8

地上6階建て

68.02坪

東京メトロ半蔵門線 半蔵門駅 5分

東京都千代田区麹町1丁目10-5

地上7階 / 地下1階

66.55坪

東京メトロ有楽町線 麹町駅 5分

東京都千代田区麹町2丁目10-7

地上6階 / 地下1階

62.02坪 〜 64.57坪

東京メトロ半蔵門線 半蔵門駅 2分

東京都千代田区麹町3丁目2-1

地上10階 / 地下1階

71.23坪

東京メトロ有楽町線 麹町駅 3分

東京都新宿区四谷1丁目3

地上10階建て

68.27坪

東京メトロ南北線 四ツ谷駅 1分

東京都港区元赤坂1丁目5-7

地上8階建て

69.23坪

東京メトロ丸ノ内線 赤坂見附駅 3分

東京都千代田区麹町2丁目3-3

地上11階 / 地下2階

62.94坪

東京メトロ半蔵門線 半蔵門駅 1分

東京都千代田区九段南4丁目2-11

地上9階建て

63.14坪

東京メトロ有楽町線 市ケ谷駅 2分

東京都千代田区麹町1丁目8

地上8階 / 地下1階

60.84坪

東京メトロ半蔵門線 半蔵門駅 1分

東京都新宿区愛住町22

地上11階建て

66.83坪

都営新宿線 曙橋駅 3分

東京都新宿区市谷砂土原町2丁目7-15

地上4階 / 地下1階

72.65坪

JR中央・総武線 市ケ谷駅 4分

東京都新宿区市谷本村町2-5

地上11階建て

60.56坪

JR中央・総武線 市ケ谷駅 4分

※表示金額はすべて「税抜き表示」となっています。 / ※間取図は現況を優先させていただきます。 / ※駐車場は建物設備としての有無のため、有の場合でも賃貸条件としての空きを保証するものではありません。 / ※掲載情報の誤りや変更、未掲載情報の掲載依頼がございましたら、お手数ですが お問い合わせフォーム よりご連絡ください。

掲載物件数:2,395件  4,306区画

お気に入りに追加