NEW

スフィアタワー天王洲 18階

天王洲アイル駅直結、上質と先進機能を兼ね備えたオフィスタワー。
最終情報更新日:2026/04/15
ビルコード: 1310900257
フリースペース フリースペース
フリースペース
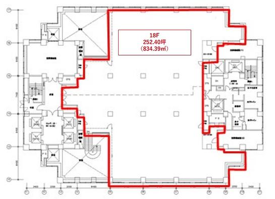
スフィアタワー天王洲 18階 平面図
建物詳細

スフィアタワー天王洲(品川区東品川2丁目2-8)は、天王洲アイル駅徒歩1分(駅直結)の賃貸オフィスビルです。

建物の規模は地上28階・地下2階建て、竣工は1993年4月(新耐震基準)です。エレベーターは10基あります。

基準階のフロア面積は、偶数フロアが326.45坪、奇数フロアが253.80坪です。天井高は2650mmです。機械警備・個別空調・OAフロア・男女別トイレなどの設備に加え、3回線受電方式の採用や防災対応設備など、BCP対応に配慮した環境・体制が整えられています。

最新の空室状況や賃料・賃貸条件など、お気軽にお問合せ下さい。

賃貸条件

所在階 18階
用途 事務所
面積 252.4坪 / 834.38m²
賃料 相談
共益費 賃料に含む
坪単価 -
預託金 相談
入居時期 2026年11月上旬
その他費用 償却: なし
礼金: なし
更新料・再契約料: なし
天井高 2,650mm
トイレ 男女別

物件概要

所在地 東京都品川区東品川2丁目2-8
交通
  • 東京モノレール 天王洲アイル駅 1分
  • 京急本線 新馬場駅 16分
規模 地上28階 / 地下2階
竣工 1993年4月
耐震基準 新耐震基準
構造 鉄骨(S造)
基準階坪数 326.45坪
基準階天井高 2,650mm
延床面積 43,477.68㎡

物件詳細・設備

エレベーター 9基
駐車場 あり
情報通信設備 光ファイバー
空調 個別空調
セキュリティ 機械警備・有人管理
建物設備 1F屋外に喫煙所あり、フリースペース有
リニューアル履歴 2008年・2015年 大規模リニューアル

スフィアタワー天王洲の空室一覧

↓ 募集区画クリックで詳細情報をご覧いただけます

募集区画 面積 用途 賃料+共益費 坪単価(共益費込) 入居時期 平面図 お気に入り
20階 252.4坪 事務所 相談 - 相談
19階~20階メゾネット 578.85坪 事務所 相談 - 即入居
19階 326.45坪 事務所 相談 - 相談
NEW 18階 252.4坪 事務所 相談 - 2026年11月上旬
NEW 16階 147.32坪 事務所 相談 - 2026年11月上旬
1階 40.25坪 店舗 相談 - 相談

※表示金額はすべて「税抜き表示」となっています。 / ※間取図は現況を優先させていただきます。 / ※駐車場は建物設備としての有無のため、有の場合でも賃貸条件としての空きを保証するものではありません。 / ※掲載情報の誤りや変更、未掲載情報の掲載依頼がございましたら、お手数ですが お問い合わせフォーム よりご連絡ください。

掲載物件数:2,371件  4,268区画

お気に入りに追加