いちご渋谷イーストビル 3階

最終情報更新日:2026/02/19
ビルコード: 1311302155
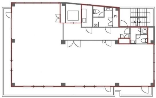
いちご渋谷イーストビル 3階 平面図
建物詳細

いちご渋谷イーストビル(渋谷区東)は、渋谷駅徒歩9分の賃貸オフィスビルです。

建物は地上6階建て、竣工は1985年10月(新耐震基準)です。

エレベーターは1基あります。基準階フロア面積は58.63坪です。

最新の空室状況や賃料・賃貸条件など、お気軽にお問合せ下さい。

賃貸条件

所在階 3階 内装付
用途 事務所
面積 58.63坪 / 193.81m²
賃料 相談
共益費 賃料に含む
坪単価 -
預託金 なし
入居時期 即入居
床仕様 OAフロア
その他 敷金0円 保証会社必須

物件概要

所在地 東京都渋谷区東1丁目3-10
交通
  • JR山手線 渋谷駅 9分
規模 地上6階建て
竣工 1985年10月
耐震基準 新耐震基準
構造 鉄筋コンクリート(RC造)
基準階坪数 58.63坪

物件詳細・設備

エレベーター 1基
駐車場 なし
情報通信設備 光ファイバー
空調 個別空調
セキュリティ 機械警備

いちご渋谷イーストビルの空室一覧

↓ 募集区画クリックで詳細情報をご覧いただけます

募集区画 面積 用途 賃料+共益費 坪単価(共益費込) 入居時期 平面図 お気に入り
3階 内装付 58.63坪 事務所 相談 - 即入居
2階 54.05坪 事務所 相談 - 即入居

近隣の条件が近い物件

東京都渋谷区東1丁目13-14

地上3階建て

61.53坪

JR山手線 渋谷駅 6分

東京都渋谷区渋谷2丁目22-16

地上7階 / 地下1階

59.68坪

JR山手線 渋谷駅 2分

東京都渋谷区渋谷3丁目28-15

地上11階建て

60.23坪

JR山手線 渋谷駅 3分

東京都渋谷区渋谷1丁目17-2

地上12階建て

57.58坪

東急東横線 渋谷駅 1分

東京都渋谷区渋谷2丁目12-15

地上8階 / 地下2階

62.78坪

JR山手線 渋谷駅 7分

東京都渋谷区渋谷1丁目8-1

地上8階 / 地下1階

61.54坪

JR山手線 渋谷駅 5分

東京都渋谷区渋谷2丁目16-5

地上8階建て

55.23坪

JR山手線 渋谷駅 3分

東京都渋谷区東3丁目24-2

地上6階建て

57.9坪

JR山手線 恵比寿駅 3分

東京都渋谷区渋谷3丁目13-11

地上10階建て

53.87坪

JR山手線 渋谷駅 4分

東京都渋谷区道玄坂1丁目19-9

地上11階 / 地下1階

58.6坪

京王井の頭線 渋谷駅 5分

東京都渋谷区東3丁目24-13

地上10階建て

56.58坪

東京メトロ日比谷線 恵比寿駅 3分

東京都渋谷区渋谷2丁目3-5 COERU渋谷二丁目

地上10階建て

64.65坪

東京メトロ銀座線 渋谷駅 7分

東京都渋谷区恵比寿西1丁目10-8

地上9階建て

58.37坪

JR山手線 恵比寿駅 2分

東京都渋谷区恵比寿西2丁目20-17

地上4階建て

56.66坪

東急東横線 代官山駅 1分

東京都渋谷区渋谷1丁目1-11

地上7階建て

64.07坪

JR山手線 渋谷駅 6分

東京都渋谷区恵比寿1丁目22-20

地上9階 / 地下1階

58.58坪

JR山手線 恵比寿駅 4分

※表示金額はすべて「税抜き表示」となっています。 / ※間取図は現況を優先させていただきます。 / ※駐車場は建物設備としての有無のため、有の場合でも賃貸条件としての空きを保証するものではありません。 / ※掲載情報の誤りや変更、未掲載情報の掲載依頼がございましたら、お手数ですが お問い合わせフォーム よりご連絡ください。

掲載物件数:2,411件  4,388区画

お気に入りに追加