
賃貸条件
| 所在階 | 2階 |
|---|---|
| 用途 | 事務所 |
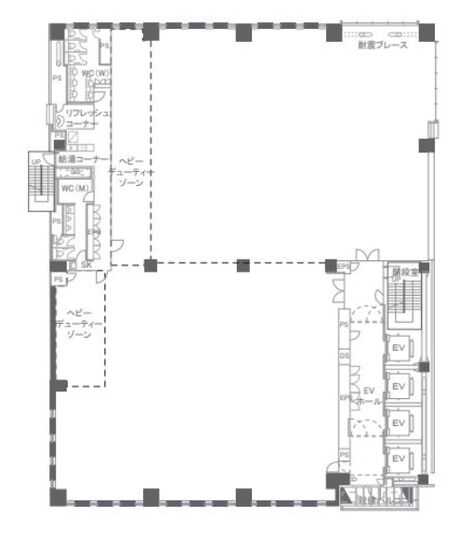
| 面積 | 268.71坪 / 888.29m² |
| 賃料 | 相談 |
| 共益費 | 相談 |
| 坪単価 | - |
| 預託金 | 相談 |
| 入居時期 | 2026年5月上旬 |
| 天井高 | 2,700mm |
| トイレ | 男女別 |
| 床仕様 | OAフロア |
物件概要
| 所在地 | 東京都渋谷区神泉町8-16 |
|---|---|
| 交通 |
|
| 規模 | 地上14階 / 地下1階 |
| 竣工 | 2005年9月 |
| 耐震基準 | 新耐震基準 |
| 構造 | 鉄骨鉄筋コンクリート(SRC造) |
| 基準階坪数 | 268.0坪 |
| 基準階天井高 | 2,700mm |
| 延床面積 | 16,744.51㎡ |
物件詳細・設備
| エレベーター | 4基 |
|---|---|
| 駐車場 | あり 機械式 42台 自走式 7台 |
| 情報通信設備 | 光ファイバー |
| 空調 | 個別空調 |
| セキュリティ | 機械警備 |
| 建物設備 | 駐輪場(14台)
省エネ電力採用 |
※表⽰⾦額は、敷⾦・保証⾦などの預かり⾦を除き、別途消費税がかかります。 / ※間取図は現況を優先させていただきます。 / ※駐車場は建物設備としての有無のため、有の場合でも賃貸条件としての空きを保証するものではありません。 / ※掲載情報の誤りや変更、未掲載情報の掲載依頼がございましたら、お手数ですが お問い合わせフォームよりご連絡ください。
近隣の条件が近い物件
掲載物件数:2,407件
4,367区画





































建物詳細
渋谷ファーストプレイス(渋谷区神泉町8-16)は、最寄り「神泉」駅より徒歩4分、各線「渋谷」駅より徒歩6分の立地の賃貸オフィスビルです。
建物の規模は地上14階・地下1階建て、竣工は2005年9月(新耐震基準)です。エレベーターは4基設置されています。
基準階貸室面積は約268坪、天井高は2700mmです。機械警備・個別空調・OAフロア・男女別トイレなどの設備仕様です。
最新の募集状況や賃料・賃貸条件など、お気軽にお問合せ下さい。