NEW

北大手町スクエア 6階

最終情報更新日:2026/02/27
ビルコード: 1310102649
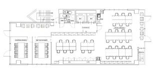
北大手町スクエア 6階 平面図
建物詳細

北大手町スクエア(旧:(仮称)内神田1丁目ビル・オザックスビル、東京都千代田区内神田1丁目5-12)は、最寄り駅「神田」駅から徒歩約5分の地上8階・地下1階建ての賃貸オフィスビルです。竣工は1996年4月、エレベーターは2基あります。

基準階貸室面積は約63.38坪、基準階天井高は2600mmです。機械警備・個別空調・OAフロア・男女別トイレ等の設備仕様となっています。

最新の空室状況・賃貸条件などお気軽にお問合せ下さい。

賃貸条件

所在階 6階
用途 事務所
面積 63.38坪 / 209.53m²
賃料 1,330,980円
共益費 190,140円
坪単価 24,000円/坪 (共益費込)
預託金 7ヶ月
入居時期 2026年8月上旬
その他費用 償却: なし
礼金: なし
更新料・再契約料: なし
天井高 2,600mm
トイレ 男女別
床仕様 OAフロア

物件概要

所在地 東京都千代田区内神田1丁目5-12
交通
  • JR山手線 神田駅 5分
  • 東京メトロ丸ノ内線 大手町駅 5分
  • 東京メトロ銀座線 神田駅 7分
規模 地上8階 / 地下1階
竣工 1996年4月
耐震基準 新耐震基準
構造 鉄骨鉄筋コンクリート(SRC造)
基準階坪数 63.38坪
基準階天井高 2,600mm
延床面積 1,842.1㎡

物件詳細・設備

エレベーター 2基
駐車場 あり 9台
情報通信設備 光ファイバー
空調 個別空調
セキュリティ 機械警備
リニューアル履歴 2020年5月 エントランス・トイレリニューアル工事完了

北大手町スクエアの空室一覧

↓ 募集区画クリックで詳細情報をご覧いただけます

募集区画 面積 用途 賃料+共益費 坪単価(共益費込) 入居時期 平面図 お気に入り
NEW 8階 42.64坪 事務所 1,066,000円 25,000円/坪 2026年8月上旬
NEW 6階 63.38坪 事務所 1,521,120円 24,000円/坪 2026年8月上旬

近隣の条件が近い物件

東京都中央区日本橋本町4丁目8-17

地上11階建て

63.23坪

総武線(快速) 新日本橋駅 1分

東京都千代田区神田司町2丁目7-1

地上9階建て

59.04坪

東京メトロ丸ノ内線 淡路町駅 4分

東京都千代田区神田須田町2丁目9-2

地上10階建て

62.11坪

都営新宿線 岩本町駅 1分

東京都千代田区神田錦町3丁目11-1

地上9階 / 地下2階

67.01坪

東京メトロ東西線 竹橋駅 3分

東京都千代田区岩本町1丁目3-9

地上8階建て

65.64坪

東京メトロ日比谷線 小伝馬町駅 4分

東京都中央区日本橋本町3丁目9-4

地上8階 / 地下1階

66.24坪

東京メトロ日比谷線 小伝馬町駅 2分

東京都千代田区神田淡路町2丁目3

地上8階建て

59.53坪

東京メトロ丸ノ内線 淡路町駅 2分

東京都中央区日本橋2丁目10-4

地上13階建て

64.72坪

東京メトロ銀座線 日本橋駅 2分

※表示金額はすべて「税抜き表示」となっています。 / ※間取図は現況を優先させていただきます。 / ※駐車場は建物設備としての有無のため、有の場合でも賃貸条件としての空きを保証するものではありません。 / ※掲載情報の誤りや変更、未掲載情報の掲載依頼がございましたら、お手数ですが お問い合わせフォーム よりご連絡ください。

掲載物件数:2,411件  4,388区画

お気に入りに追加