NEW

八丁堀第一生命ビル 3階

最終情報更新日:2026/02/16
ビルコード: 1310203068
八丁堀第一生命ビル外観① 八丁堀第一生命ビル外観①
八丁堀第一生命ビル外観② 八丁堀第一生命ビル外観②
ビルエントランス① ビルエントランス①
ビルエントランス② ビルエントランス②
エントランスホール① エントランスホール①
エレベーター エレベーター
エントランスホール② エントランスホール②
1階店舗部分 1階店舗部分
ビル周辺風景① ビル周辺風景①
ビル周辺風景② ビル周辺風景②
ビル周辺風景③ ビル周辺風景③
八丁堀第一生命ビル外観①
八丁堀第一生命ビル外観②
ビルエントランス①
ビルエントランス②
エントランスホール①
エレベーター
エントランスホール②
1階店舗部分
ビル周辺風景①
ビル周辺風景②
ビル周辺風景③
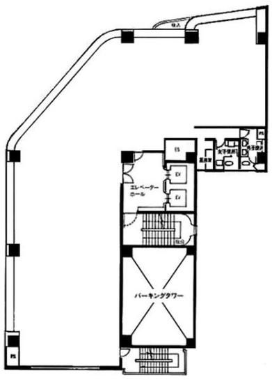
八丁堀第一生命ビル 3階 平面図
建物詳細

八丁堀第一生命ビル(中央区八丁堀2丁目)は、八丁堀駅徒歩1分の賃貸オフィスビルです。

建物の規模は地上9階建て、竣工は1992年1月(新耐震基準)です。エレベーターは2基あります。

基準階のフロア面積は105.68坪、天井高は2530mmです。機械警備・個別空調・OAフロア・男女別トイレなどの設備が整っています。

最新の空室状況や賃料・賃貸条件など、お気軽にお問合せ下さい。

賃貸条件

所在階 3階
用途 事務所
面積 105.68坪 / 349.35m²
賃料 相談
共益費 相談
坪単価 -
預託金 相談
入居時期 2026年8月上旬
天井高 2,530mm
トイレ 男女別
床仕様 OAフロア

物件概要

所在地 東京都中央区八丁堀2丁目24-2
交通
  • 東京メトロ日比谷線 八丁堀駅 1分
規模 地上9階建て
竣工 1992年1月
耐震基準 新耐震基準
構造 鉄骨鉄筋コンクリート(SRC造)
基準階坪数 105.68坪
基準階天井高 2,530mm
延床面積 4,295.79㎡

物件詳細・設備

エレベーター 2基
駐車場 あり
情報通信設備 光ファイバー
空調 個別空調
セキュリティ 機械警備

八丁堀第一生命ビルの空室一覧

↓ 募集区画クリックで詳細情報をご覧いただけます

募集区画 面積 用途 賃料+共益費 坪単価(共益費込) 入居時期 平面図 お気に入り
NEW 3階 105.68坪 事務所 相談 - 2026年8月上旬

近隣の条件が近い物件

東京都中央区八丁堀2丁目20-9

地上9階 / 地下1階

105.5坪

都営浅草線 宝町駅 6分

東京都中央区新川2丁目12-15

地上8階 / 地下1階

106.55坪

JR京葉線 八丁堀駅 3分

東京都中央区八丁堀4丁目9-4

地上9階 / 地下1階

104.19坪

JR京葉線 八丁堀駅 1分

東京都中央区日本橋兜町21-7

地上8階 / 地下1階

107.61坪

東京メトロ日比谷線 茅場町駅 4分

東京都中央区日本橋茅場町1丁目12-2

地上9階 / 地下1階

103.21坪

東京メトロ東西線 茅場町駅 1分

東京都中央区八丁堀2丁目6-1

地上9階 / 地下5階

101.51坪

東京メトロ日比谷線 八丁堀駅 3分

東京都中央区八丁堀3丁目20-4

地上12階建て

101.11坪

JR京葉線 八丁堀駅 1分

東京都中央区八丁堀3丁目4-10

地上8階建て

102.51坪

都営浅草線 宝町駅 3分

東京都中央区築地7丁目2-1

地上7階建て

105.13坪

東京メトロ日比谷線 築地駅 4分

東京都中央区銀座1丁目3-9

地上11階 / 地下2階

107.55坪

東京メトロ有楽町線 銀座一丁目駅 1分

東京都千代田区丸の内1丁目8-3

地上37階 / 地下4階

103.4坪

JR山手線 東京駅 2分

※表示金額はすべて「税抜き表示」となっています。 / ※間取図は現況を優先させていただきます。 / ※駐車場は建物設備としての有無のため、有の場合でも賃貸条件としての空きを保証するものではありません。 / ※掲載情報の誤りや変更、未掲載情報の掲載依頼がございましたら、お手数ですが お問い合わせフォーム よりご連絡ください。

掲載物件数:2,421件  4,395区画

お気に入りに追加