NEW

KDX新日本橋駅前ビル 5階

最終情報更新日:2026/04/10
ビルコード: 1310202934
ビル看板 ビル看板
ビルエントランス ビルエントランス
エントランスホール① エントランスホール①
エントランスホール② エントランスホール②
ビル周辺風景① ビル周辺風景①
ビル周辺風景② ビル周辺風景②
ビル看板
ビルエントランス
エントランスホール①
エントランスホール②
ビル周辺風景①
ビル周辺風景②
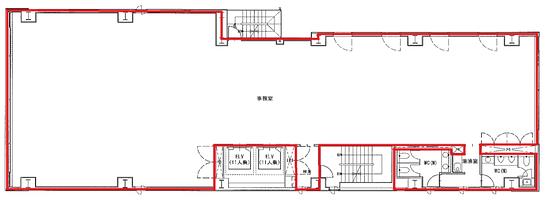
KDX新日本橋駅前ビル 5階 平面図
建物詳細

KDX新日本橋駅前ビル(中央区日本橋本町4丁目)は、新日本橋駅徒歩1分の賃貸オフィスビルです。

建物の規模は地上10階・地下1階建て、竣工は1992年5月(新耐震基準)です。エレベーターは2基あります。

基準階貸室面積は109.53坪、天井高は2600mm、機械警備・個別空調・OAフロア・男女別トイレなどの設備仕様となっております。

最新の空室状況や賃料・賃貸条件など、お気軽にお問合せ下さい。

賃貸条件

所在階 5階
用途 事務所
面積 108.67坪 / 359.23m²
賃料 相談
共益費 賃料に含む
坪単価 -
預託金 12ヶ月
入居時期 相談
天井高 2,600mm
トイレ 男女別
床仕様 OAフロア・タイルカーペット

物件概要

所在地 東京都中央区日本橋本町4丁目8-16
交通
  • 総武線(快速) 新日本橋駅 1分
  • 東京メトロ銀座線 三越前駅 4分
  • 東京メトロ日比谷線 小伝馬町駅 7分
規模 地上10階 / 地下1階
竣工 1992年5月
耐震基準 新耐震基準
構造 鉄骨鉄筋コンクリート(SRC造)
基準階坪数 109.53坪
基準階天井高 2,600mm
延床面積 4,420.64㎡

物件詳細・設備

エレベーター 2基
駐車場 あり 機械式 28台
情報通信設備 光ファイバー
空調 個別空調
セキュリティ 機械警備
リニューアル履歴 2017年 空調設備更新済
2016年1月 1階エントランスホールリニューアル済

KDX新日本橋駅前ビルの空室一覧

↓ 募集区画クリックで詳細情報をご覧いただけます

募集区画 面積 用途 賃料+共益費 坪単価(共益費込) 入居時期 平面図 お気に入り
NEW 5階 108.67坪 事務所 相談 - 相談

※表示金額はすべて「税抜き表示」となっています。 / ※間取図は現況を優先させていただきます。 / ※駐車場は建物設備としての有無のため、有の場合でも賃貸条件としての空きを保証するものではありません。 / ※掲載情報の誤りや変更、未掲載情報の掲載依頼がございましたら、お手数ですが お問い合わせフォーム よりご連絡ください。

掲載物件数:2,346件  4,201区画

お気に入りに追加