
賃貸条件
| 所在階 | 8階 |
|---|---|
| 用途 | 事務所 |
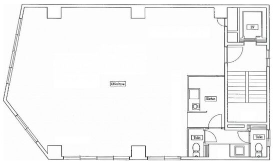
| 面積 | 28.67坪 / 94.77m² |
| 賃料 | 360,000円 |
| 共益費 | 賃料に含む |
| 坪単価 | 12,556円/坪(共益費込) |
| 預託金 | 5ヶ月 |
| 入居時期 | 相談 |
| その他費用 | 償却: なし 礼金: なし 更新料・再契約料: 新賃料1ヶ月 |
| トイレ | 男女別 |
| 床仕様 | タイルカーペット |
物件概要
| 所在地 | 東京都中央区日本橋堀留町1丁目11-10 |
|---|---|
| 交通 |
|
| 規模 | 地上9階建て |
| 竣工 | 1971年1月 |
| 構造 | 鉄骨鉄筋コンクリート(SRC造) |
| 基準階坪数 | 28.67坪 |
| 基準階天井高 | 2,600mm |
| 延床面積 | 7,362.25㎡ |
物件詳細・設備
| エレベーター | 1基 |
|---|---|
| 駐車場 | あり 機械式 30台 平面式 1台 |
| 情報通信設備 | 光ファイバー |
| 空調 | 個別空調 |
| セキュリティ | 機械警備 |
| リニューアル履歴 | 2007年12月 リノべーション工事済 |
堀留ファーストビルの空室一覧
↓ 募集区画クリックで詳細情報をご覧いただけます
| 募集区画 | 面積 | 用途 | 賃料+共益費 | 坪単価(共益費込) | 入居時期 | 平面図 | お気に入り |
|---|---|---|---|---|---|---|---|
| NEW8階 | 28.67坪 | 事務所 | 360,000円 | 12,556円/坪 | 相談 |
※表⽰⾦額は、敷⾦・保証⾦などの預かり⾦を除き、別途消費税がかかります。 / ※間取図は現況を優先させていただきます。 / ※駐車場は建物設備としての有無のため、有の場合でも賃貸条件としての空きを保証するものではありません。 / ※掲載情報の誤りや変更、未掲載情報の掲載依頼がございましたら、お手数ですが お問い合わせフォームよりご連絡ください。
近隣の条件が近い物件
掲載物件数:2,407件
4,367区画


















