NEW

新共立ビルディング 4階

東京駅も徒歩圏内。レイアウトしやすい無柱整形空間の賃貸オフィス。
最終情報更新日:2026/03/16
ビルコード: 1310200199
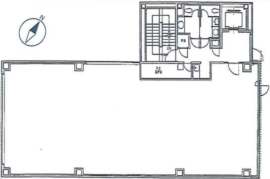
新共立ビルディング 4階 平面図
建物詳細

新共立ビルディング(東京都中央区新川2丁目22-4)は、最寄り駅「八丁堀」駅など3駅徒歩圏内の地上5階建ての賃貸オフィスビルです。ビルの竣工は1996年3月、エレベーターは1基設置されています。

基準階貸室面積は約65坪、天井高は2550mmの無柱空間。機械警備・個別空調・OAフロア・男女別トイレ等の設備仕様です。1フロア1オフィスで、セキュリティの確保と独立性の高いフロアレイアウトが可能。エレベーターホールやお手洗いなどは執務室の外に配置されており、使いやすい空間となっています。

最新の空室状況や賃料・賃貸条件など、お気軽にお問合せ下さい。

賃貸条件

所在階 4階
用途 事務所
面積 65.3坪 / 215.86m²
賃料 相談
共益費 相談
坪単価 -
預託金 12ヶ月
入居時期 2026年9月上旬
その他費用 償却: 2ヶ月
礼金: なし
更新料・再契約料: なし
天井高 2,550mm
トイレ 男女別
床仕様 OAフロア

物件概要

所在地 東京都中央区新川2丁目22-4
交通
  • JR京葉線 八丁堀駅 3分
  • 東京メトロ日比谷線 八丁堀駅 6分
  • 東京メトロ日比谷線 茅場町駅 9分
規模 地上5階建て
竣工 1996年3月
耐震基準 新耐震基準
構造 鉄骨(S造)
基準階坪数 65.3坪
基準階天井高 2,550mm

物件詳細・設備

エレベーター 1基
空調 個別空調
セキュリティ 機械警備

新共立ビルディングの空室一覧

↓ 募集区画クリックで詳細情報をご覧いただけます

募集区画 面積 用途 賃料+共益費 坪単価(共益費込) 入居時期 平面図 お気に入り
NEW 4階 65.3坪 事務所 相談 - 2026年9月上旬

近隣の条件が近い物件

東京都中央区八丁堀3丁目27-4

地上8階建て

65.7坪

東京メトロ日比谷線 八丁堀駅 1分

東京都中央区新川1丁目17-18

地上9階 / 地下2階

65.02坪

東京メトロ日比谷線 茅場町駅 5分

東京都中央区八丁堀1丁目11-12

地上9階建て

64.64坪

東京メトロ日比谷線 八丁堀駅 3分

東京都中央区八丁堀3丁目14-4

地上8階建て

65.9坪

東京メトロ日比谷線 八丁堀駅 2分

東京都中央区日本橋箱崎町6-1

地上7階建て

65.42坪

東京メトロ日比谷線 茅場町駅 5分

東京都中央区八丁堀4丁目11-10

地上10階建て

62.88坪

東京メトロ日比谷線 八丁堀駅 1分

東京都中央区新川2丁目9-9

地上7階 / 地下1階

68.25坪

JR京葉線 八丁堀駅 1分

東京都中央区八丁堀4丁目11-5

地上6階 / 地下1階

63.02坪

東京メトロ日比谷線 八丁堀駅 1分

東京都中央区日本橋茅場町1丁目10-8

地上7階 / 地下1階

64.89坪

東京メトロ日比谷線 茅場町駅 1分

東京都中央区新川1丁目23-5

地上14階 / 地下1階

68.46坪

東京メトロ東西線 茅場町駅 6分

東京都中央区日本橋蛎殻町1丁目4-1

地上8階 / 地下1階

64.64坪

東京メトロ日比谷線 茅場町駅 5分

東京都中央区八丁堀4丁目3-4

地上11階建て

67.05坪

東京メトロ日比谷線 八丁堀駅 3分

東京都中央区築地2丁目4-2

地上9階建て

66.1坪

東京メトロ有楽町線 新富町駅 1分

東京都中央区日本橋2丁目10-4

地上13階建て

64.72坪

東京メトロ銀座線 日本橋駅 2分

東京都中央区日本橋茅場町2丁目3-6

地上9階建て

67.97坪

東京メトロ日比谷線 茅場町駅 3分

東京都中央区銀座1丁目3-13

地上9階 / 地下1階

66.02坪

東京メトロ有楽町線 銀座一丁目駅 1分

※表示金額はすべて「税抜き表示」となっています。 / ※間取図は現況を優先させていただきます。 / ※駐車場は建物設備としての有無のため、有の場合でも賃貸条件としての空きを保証するものではありません。 / ※掲載情報の誤りや変更、未掲載情報の掲載依頼がございましたら、お手数ですが お問い合わせフォーム よりご連絡ください。

掲載物件数:2,363件  4,293区画

お気に入りに追加