
賃貸条件
| 所在階 | 7階内装付 |
|---|---|
| 用途 | 事務所 |
| 面積 | 39.54坪 / 130.71m² |
| 賃料 | 988,500円 |
| 共益費 | 賃料に含む |
| 坪単価 | 25,000円/坪(共益費込) |
| 預託金 | 6ヶ月 |
| 入居時期 | 2026年5月上旬 |
| その他費用 | 償却: なし 礼金: なし 更新料・再契約料: 新賃料1ヶ月 |
| トイレ | 男女別 |
| 床仕様 | OAフロア |
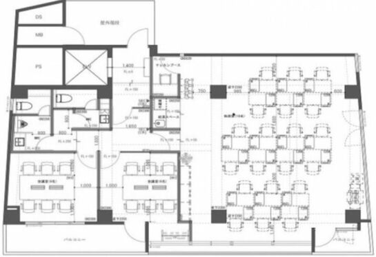
| その他 | 受付台・什器付会議室(6名用×2部屋)・テレカンブース設置済 |
物件概要
| 所在地 | 東京都千代田区麹町4丁目3-5 |
|---|---|
| 交通 |
|
| 規模 | 地上8階 / 地下2階 |
| 竣工 | 1987年10月 |
| 耐震基準 | 新耐震基準 |
| 構造 | 鉄骨鉄筋コンクリート(SRC造) |
| 基準階坪数 | 43.0坪 |
| 基準階天井高 | 2,350mm |
物件詳細・設備
| エレベーター | 1基 |
|---|---|
| 情報通信設備 | 光ファイバー |
| 空調 | 個別空調 |
| セキュリティ | 機械警備 |
| リニューアル履歴 | 2016年1月、EVリニューアル実施済
2022年4月、エントランスリニューアル実施済 2024年12月、水回りリニューアル・会議室(間仕切りのみ)設置済 |
※表⽰⾦額は、敷⾦・保証⾦などの預かり⾦を除き、別途消費税がかかります。 / ※間取図は現況を優先させていただきます。 / ※駐車場は建物設備としての有無のため、有の場合でも賃貸条件としての空きを保証するものではありません。 / ※掲載情報の誤りや変更、未掲載情報の掲載依頼がございましたら、お手数ですが お問い合わせフォームよりご連絡ください。
近隣の条件が近い物件
掲載物件数:2,424件
4,417区画





















建物詳細
Kioicho435(旧:紀尾井観光ビル、東京都千代田区麹町4丁目3-5)は、最寄り駅「麹町」駅から徒歩約1分の地上8階・地下2階建ての賃貸オフィスビルです。竣工は1987年10月、エレベーターは1基あります。
基準階貸室面積は約43坪です。機械警備・個別空調・OAフロア・男女別トイレ等の設備仕様となっています。
最新の空室状況・賃貸条件などお気軽にお問合せ下さい。