NEW

合人社東京秋葉原ビル(旧:THE GATE AKIHABARA・フォアサイトビル) 8階802

屋上にテナント様専用のテラスがあります!
最終情報更新日:2026/03/13
ビルコード: 1310100609
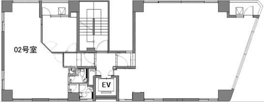
合人社東京秋葉原ビル(旧:THE GATE AKIHABARA・フォアサイトビル) 8階802 平面図
建物詳細

合人社東京秋葉原ビル(千代田区岩本町3丁目)は、岩本町駅徒歩3分の賃貸オフィスビルです。

建物の規模は地上9階建て、竣工は1985年5月(新耐震基準)です。エレベーターは1基あります。

2019年にエントランスや外観など、大規模リニューアルが済んでおります。

屋上には、館内テナント様専用の広々としたテラスがあり、お打合せやランチ、休憩などにご利用いただけます。都心にいながら、季節折々の空や風を楽しむことができます。

各階、ビル中央にエレベーターやお手洗いなどあり、その左右に、約28坪程度の貸室(1号室)と約19坪程度の貸室(2号室)があります。

設備としては、機械警備・個別空調・OAフロア・男女別トイレなどがございます。

最新の空室状況や賃料・賃貸条件など、お気軽にお問合せ下さい。

賃貸条件

所在階 8階 内装付
用途 事務所
面積 19.46坪 / 64.33m²
賃料 447,580円
共益費 賃料に含む
坪単価 23,000円/坪 (共益費込)
預託金 6ヶ月
入居時期 2026年8月上旬
その他費用 償却: なし
礼金: なし
更新料・再契約料: なし
トイレ 男女別
床仕様 OAフロア
その他 入居テナント様専用屋上テラスあり

物件概要

所在地 東京都千代田区岩本町3丁目5-2
交通
  • 都営新宿線 岩本町駅 3分
  • 東京メトロ日比谷線 秋葉原駅 4分
  • 総武線(快速) 馬喰町駅 10分
規模 地上9階建て
竣工 1985年5月
耐震基準 新耐震基準
構造 鉄骨鉄筋コンクリート(SRC造)

物件詳細・設備

エレベーター 1基
駐車場 なし
情報通信設備 光ファイバー
空調 個別空調
セキュリティ 機械警備
リニューアル履歴 2019年8月 ビル全体大規模リニューアル完了

合人社東京秋葉原ビル(旧:THE GATE AKIHABARA・フォアサイトビル)の空室一覧

↓ 募集区画クリックで詳細情報をご覧いただけます

募集区画 面積 用途 賃料+共益費 坪単価(共益費込) 入居時期 平面図 お気に入り
9階901 内装付 27.76坪 事務所 638,480円 23,000円/坪 即入居
NEW 8階802 内装付 19.46坪 事務所 447,580円 23,000円/坪 2026年8月上旬
NEW 1階102 内装付 17.27坪 事務所 397,210円 23,000円/坪 2026年6月中旬

近隣の条件が近い物件

東京都千代田区岩本町3丁目9-15

地上10階建て

19.13坪

都営新宿線 岩本町駅 2分

東京都千代田区岩本町2丁目5-12

地上10階建て

19.52坪

都営新宿線 岩本町駅 3分

東京都千代田区岩本町3丁目8-11

地上8階建て

21.37坪

都営新宿線 岩本町駅 3分

東京都千代田区神田東松下町13

地上9階 / 地下1階

17.73坪

都営新宿線 岩本町駅 3分

東京都千代田区神田岩本町1-23

地上14階 / 地下1階

16.95坪

都営新宿線 岩本町駅 1分

東京都中央区日本橋本町4丁目5-13

地上10階建て

20.37坪

総武線(快速) 新日本橋駅 3分

東京都千代田区神田須田町1丁目7-8

地上12階建て

19.3坪

東京メトロ銀座線 神田駅 2分

東京都千代田区神田佐久間町1-11

地上10階 / 地下1階

22.09坪

JR山手線 秋葉原駅 1分

東京都中央区日本橋本町4丁目9-3

地上14階建て

21.13坪

総武線(快速) 新日本橋駅 2分

東京都中央区日本橋大伝馬町1-7

地上9階建て

21.86坪

東京メトロ日比谷線 小伝馬町駅 2分

東京都千代田区神田紺屋町15

地上10階 / 地下1階

23.27坪

JR山手線 神田駅 4分

東京都千代田区岩本町3丁目9-4

地上7階建て

25.43坪

都営新宿線 岩本町駅 2分

東京都千代田区内神田3丁目22-3

地上12階建て

22.12坪

JR山手線 神田駅 2分

東京都千代田区岩本町2丁目11-3

地上8階 / 地下1階

25.82坪

都営新宿線 岩本町駅 4分

東京都千代田区神田須田町1-21

地上7階建て

22.5坪

都営新宿線 小川町駅 3分

東京都中央区東日本橋2丁目2-10

地上6階 / 地下1階

22.81坪

都営浅草線 東日本橋駅 1分

東京都文京区湯島1丁目9-3

地上5階 / 地下1階

18.65坪

JR中央・総武線 御茶ノ水駅 5分

東京都中央区日本橋小舟町11丁目8

地上10階建て

16.56坪

総武線(快速) 新日本橋駅 6分

※表示金額はすべて「税抜き表示」となっています。 / ※間取図は現況を優先させていただきます。 / ※駐車場は建物設備としての有無のため、有の場合でも賃貸条件としての空きを保証するものではありません。 / ※掲載情報の誤りや変更、未掲載情報の掲載依頼がございましたら、お手数ですが お問い合わせフォーム よりご連絡ください。

掲載物件数:2,401件  4,336区画

お気に入りに追加