
賃貸条件
| 所在階 | 3階内装付 |
|---|---|
| 用途 | 事務所 |
| 面積 | 69.01坪 / 228.13m² |
| 賃料 | 相談 |
| 共益費 | 賃料に含む |
| 坪単価 | - |
| 預託金 | 相談 |
| 入居時期 | 即入居 |
| その他費用 | 償却: なし 礼金: なし 更新料・再契約料: なし |
| 天井高 | 2,930mm |
| トイレ | 男女別 |
| 床仕様 | OAフロア |
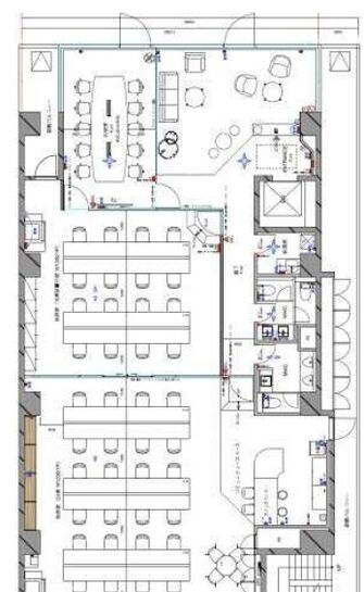
| その他 | 内装・家具付セットアップ(受付・会議室を設置済、一部家具付) |
物件概要
| 所在地 | 東京都中央区明石町7-14 |
|---|---|
| 交通 |
|
| 規模 | 地上8階 / 地下1階 |
| 竣工 | 1996年6月 |
| 耐震基準 | 新耐震基準 |
| 構造 | 鉄骨鉄筋コンクリート(SRC造) |
| 基準階坪数 | 69.1坪 |
| 基準階天井高 | 2,930mm |
物件詳細・設備
| エレベーター | 1基 |
|---|---|
| 駐車場 | あり |
| 情報通信設備 | 光ファイバー |
| 空調 | 個別空調 |
| セキュリティ | 機械警備 |
| リニューアル履歴 | 2020年6月 貸室内リニューアル実施【執務室・トイレ・給湯・照明等】
2018年9月 大規模リニューアル実施済【外観・エントランス、6階貸室内:執務室・トイレ・給湯・照明等】 |
※表⽰⾦額は、敷⾦・保証⾦などの預かり⾦を除き、別途消費税がかかります。 / ※間取図は現況を優先させていただきます。 / ※駐車場は建物設備としての有無のため、有の場合でも賃貸条件としての空きを保証するものではありません。 / ※掲載情報の誤りや変更、未掲載情報の掲載依頼がございましたら、お手数ですが お問い合わせフォームよりご連絡ください。
近隣の条件が近い物件
掲載物件数:2,434件
4,413区画



































建物詳細
築地リバーフロントビル(中央区明石町)は、東京メトロ日比谷線 築地駅徒歩7分の賃貸オフィスビルです。
ビルの竣工は1996年6月(新耐震基準)、建物規模は地上8階・地下1階建てです。2018年 大規模リニューアル済・2020年 貸室リニューアル済。エレベーターは1基あります。
貸室基準階のフロア面積は69.1坪、天井高は2930mmです。設備面では、機械警備・個別空調・OAフロア・男女別トイレなどが備わっています。
最新の空室状況や賃料・賃貸条件など、お気軽にお問合せ下さい。