NEW

ステーションプラザタワー 502

最終情報更新日:2026/04/06
ビルコード: 1311800019
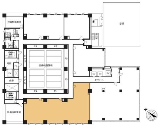
ステーションプラザタワー 502 平面図

賃貸条件

所在階 5階
用途 事務所
面積 71.91坪 / 237.73m²
賃料 相談
共益費 賃料に含む
坪単価 -
預託金 5ヶ月
入居時期 2026年7月下旬
その他費用 償却: なし
礼金: 1ヶ月
更新料・再契約料: 1ヶ月
天井高 2,710mm
トイレ 男女別
その他 事務所のみ・サービス店舗不可

物件概要

所在地 東京都荒川区西日暮里2丁目22-1
交通
  • JR山手線 西日暮里駅 2分
  • JR山手線 西日暮里駅 7分
規模 地上36階 / 地下2階
竣工 2009年10月
耐震基準 新耐震基準
構造 鉄筋コンクリート(RC造)

物件詳細・設備

エレベーター 10基
空調 個別空調

ステーションプラザタワーの空室一覧

↓ 募集区画クリックで詳細情報をご覧いただけます

募集区画 面積 用途 賃料+共益費 坪単価(共益費込) 入居時期 平面図 お気に入り
NEW 502 71.91坪 事務所 相談 - 2026年7月下旬

近隣の条件が近い物件

東京都荒川区東日暮里6丁目60-10

地上10階 / 地下1階

82.59坪

JR山手線 日暮里駅 2分

東京都文京区千石1丁目8-23

地上5階建て

72.8坪

都営三田線 千石駅 4分

東京都荒川区西日暮里2丁目20-1

地上25階 / 地下2階

55.5坪

JR山手線 西日暮里駅 1分

東京都豊島区巣鴨2丁目3-2

地上4階 / 地下1階

70.92坪

JR山手線 巣鴨駅 1分

東京都文京区本郷2丁目27-18

地上9階 / 地下1階

73.48坪

東京メトロ丸ノ内線 本郷三丁目駅 2分

東京都文京区白山1丁目33-18

地上9階建て

66.4坪

都営三田線 白山駅 1分

東京都台東区上野7丁目6-5

地上10階建て

77.73坪

JR山手線 上野駅 1分

東京都文京区小日向4丁目2-6

地上9階 / 地下2階

71.06坪

東京メトロ丸ノ内線 茗荷谷駅 5分

東京都豊島区北大塚1丁目13-17

地上5階 / 地下1階

72.7坪

JR山手線 大塚駅 4分

東京都千代田区西神田1丁目3-6

地上9階 / 地下1階

70.75坪

JR中央・総武線 水道橋駅 4分

東京都千代田区神田神保町1丁目50

地上8階建て

71.19坪

東京メトロ半蔵門線 神保町駅 6分

東京都台東区上野4丁目10-7

地上8階 / 地下2階

65.0坪

JR山手線 上野駅 2分

東京都文京区本郷1丁目4-5

地上10階建て

69.27坪

都営三田線 水道橋駅 1分

※表示金額はすべて「税抜き表示」となっています。 / ※間取図は現況を優先させていただきます。 / ※駐車場は建物設備としての有無のため、有の場合でも賃貸条件としての空きを保証するものではありません。 / ※掲載情報の誤りや変更、未掲載情報の掲載依頼がございましたら、お手数ですが お問い合わせフォーム よりご連絡ください。

掲載物件数:2,342件  4,209区画

お気に入りに追加