光陽ビル(中央区) 4階

最終情報更新日:2026/02/27
ビルコード: 1310204122
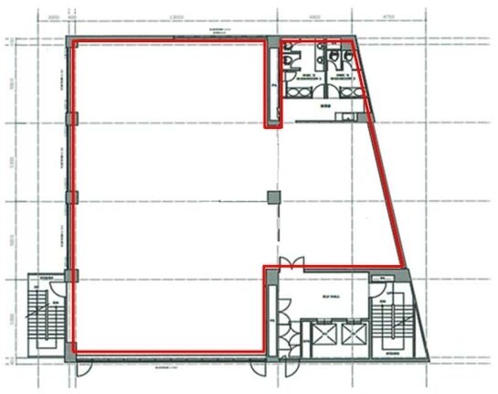
光陽ビル(中央区) 4階 平面図

賃貸条件

所在階 4階
用途 事務所
面積 115.68坪 / 382.41m²
賃料 1,735,200円
共益費 347,040円
坪単価 18,000円/坪 (共益費込)
預託金 10ヶ月
入居時期 2026年3月上旬
その他費用 償却: なし
礼金: なし
更新料・再契約料: なし
天井高 2,650mm
トイレ 男女別
床仕様 フリーアクセス

物件概要

所在地 東京都中央区東日本橋1丁目5-6
交通
  • 都営浅草線 東日本橋駅 2分
  • 都営新宿線 馬喰横山駅 3分
  • 総武線(快速) 馬喰町駅 6分
規模 地上8階 / 地下2階
竣工 1996年10月
耐震基準 新耐震基準
構造 鉄骨鉄筋コンクリート(SRC造)
基準階天井高 2,650mm

物件詳細・設備

エレベーター 2基
駐車場 あり
空調 個別空調

光陽ビル(中央区)の空室一覧

↓ 募集区画クリックで詳細情報をご覧いただけます

募集区画 面積 用途 賃料+共益費 坪単価(共益費込) 入居時期 平面図 お気に入り
4階 115.68坪 事務所 2,082,240円 18,000円/坪 2026年3月上旬
3階 居抜き 115.68坪 事務所 2,082,240円 18,000円/坪 即入居
2階 内装付 106.87坪 事務所 2,671,750円 25,000円/坪 即入居

近隣の条件が近い物件

東京都中央区日本橋馬喰町1丁目11-10

地上11階建て

113.12坪

総武線(快速) 馬喰町駅 1分

東京都中央区日本橋本町2丁目7-1(予定)

地上17階 / 地下1階

110.64坪 〜 112.89坪

東京メトロ銀座線 三越前駅 6分

東京都千代田区神田須田町2丁目6-6

地上9階 / 地下2階

113.78坪

都営新宿線 岩本町駅 1分

東京都千代田区外神田1丁目18-13

地上31階 / 地下2階

114.24坪

JR山手線 秋葉原駅 1分

東京都中央区日本橋本町4丁目3-6

地上9階 / 地下1階

112.36坪

JR山手線 神田駅 5分

東京都中央区日本橋小伝馬町7-2

地上10階 / 地下1階

110.07坪

東京メトロ日比谷線 小伝馬町駅 1分

東京都中央区日本橋蛎殻町1丁目38-9

地上8階 / 地下1階

110.4坪

東京メトロ半蔵門線 水天宮前駅 1分

東京都中央区八丁堀2丁目21-6

地上9階 / 地下1階

117.63坪

東京メトロ日比谷線 八丁堀駅 1分

東京都中央区日本橋箱崎町27-9

地上12階建て

110.65坪

東京メトロ半蔵門線 水天宮前駅 2分

東京都千代田区神田須田町2丁目7-2

地上10階 / 地下1階

110.24坪

都営新宿線 岩本町駅 1分

東京都千代田区神田紺屋町15

地上10階 / 地下1階

122.52坪

JR山手線 神田駅 4分

東京都中央区八丁堀4丁目10-4

地上8階 / 地下1階

112.83坪

JR京葉線 八丁堀駅 1分

東京都千代田区外神田3丁目5-12

地上10階 / 地下1階

110.71坪

東京メトロ銀座線 末広町駅 2分

東京都中央区新富1丁目18-8

地上9階 / 地下1階

112.72坪

東京メトロ有楽町線 新富町駅 3分

※表示金額はすべて「税抜き表示」となっています。 / ※間取図は現況を優先させていただきます。 / ※駐車場は建物設備としての有無のため、有の場合でも賃貸条件としての空きを保証するものではありません。 / ※掲載情報の誤りや変更、未掲載情報の掲載依頼がございましたら、お手数ですが お問い合わせフォーム よりご連絡ください。

掲載物件数:2,357件  4,254区画

お気に入りに追加