
賃貸条件
| 所在階 | 9階 |
|---|---|
| 用途 | 事務所 |
| 面積 | 82.66坪 / 273.25m² |
| 賃料 | 相談 |
| 共益費 | 賃料に含む |
| 坪単価 | - |
| 預託金 | 12ヶ月 |
| 入居時期 | 2026年5月上旬 |
| その他費用 | 償却: なし 更新料・再契約料: なし |
| 天井高 | 2,700mm |
| トイレ | 男女別 |
物件概要
| 所在地 | 東京都品川区大井1丁目47-1 |
|---|---|
| 交通 |
|
| 規模 | 地上17階 / 地下2階 |
| 竣工 | 1996年4月 |
| 耐震基準 | 新耐震基準 |
| 構造 | 鉄骨鉄筋コンクリート(SRC造) |
| 基準階坪数 | 184.69坪 |
| 基準階天井高 | 2,700mm |
| 延床面積 | 19,774.1㎡ |
物件詳細・設備
| エレベーター | 5基 |
|---|---|
| 駐車場 | あり 52台 機械式44台 平面8台 |
| 情報通信設備 | 光ファイバー |
| 空調 | 個別空調・セントラル空調 |
| セキュリティ | 機械警備・有人管理 |
※表⽰⾦額は、敷⾦・保証⾦などの預かり⾦を除き、別途消費税がかかります。 / ※間取図は現況を優先させていただきます。 / ※駐車場は建物設備としての有無のため、有の場合でも賃貸条件としての空きを保証するものではありません。 / ※掲載情報の誤りや変更、未掲載情報の掲載依頼がございましたら、お手数ですが お問い合わせフォームよりご連絡ください。
近隣の条件が近い物件
掲載物件数:2,361件
4,302区画





















建物詳細
NTビル(品川区大井1丁目47-1)は、「大井町」駅徒歩3分、地上17階・地下2階建ての賃貸オフィスビルです。
大型商業施設や飲食店が集積する、オフィスワーカーにとって利便性の高い駅前エリアに立地。
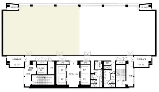
基準階のフロア面積は約185坪、天井高は2700mmです。個別空調・OAフロア・男女別トイレなどの設備仕様、機械警備と有人管理のセキュリティ体制です。エレベーターは計5基(うち1基は非常用)設置されています。
最新の募集状況や賃料・賃貸条件など、お気軽にお問合せ下さい。