03-6264-1890
受付時間 9:00 - 18:30 定休日 土日祝
受付時間 9:00 - 18:30 定休日 土日祝
JMFビル東陽町02(旧:イーストスクエア東京・NOF東陽町ビル) 3階
物件情報
| 所在地 | 東京都江東区新砂1丁目6-35 |
|---|---|
| 最寄駅 |
東京メトロ東西線 東陽町駅 9分 |
| 竣工 | 1989年11月 |
| 階数 | 地上7階建て |
| エレベーター | 4基 |
賃貸条件
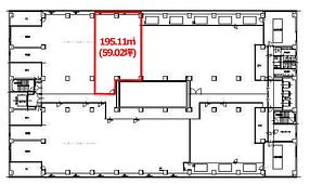
| 募集区画 | 3階 |
|---|---|
| 賃料 (共益費) | 相談(賃料に含む) |
| 敷金 /礼金 | 12ヶ月/- |
|
保証金
/敷引/償却 |
-/-/なし |
| 面積 | 59.02坪 |
| 入居条件 | 2027年3月上旬 |