03-6264-1890
受付時間 9:00 - 18:30 定休日 土日祝
受付時間 9:00 - 18:30 定休日 土日祝
PMO渋谷 9階
物件情報
| 所在地 | 東京都渋谷区渋谷1丁目17-4 |
|---|---|
| 最寄駅 |
JR山手線 渋谷駅 6分 東急東横線 渋谷駅 2分 |
| 竣工 | 2017年6月 |
| 階数 | 地上14階 / 地下1階 |
| エレベーター | 1基 |
賃貸条件
| 募集区画 | 9階 |
|---|---|
| 賃料 (共益費) | 相談(相談) |
| 敷金 /礼金 | 相談/- |
|
保証金
/敷引/償却 |
なし |
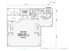
| 面積 | 91.04坪 |
| 入居条件 | 2026年12月上旬 |