03-6264-1890
受付時間 9:00 - 18:30 定休日 土日祝
受付時間 9:00 - 18:30 定休日 土日祝
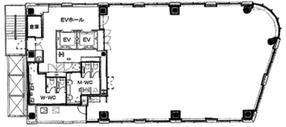
アポロタワー日本橋(旧:KLL日本橋ビル) 6階
物件情報
| 所在地 | 東京都中央区日本橋本町1丁目8-16 |
|---|---|
| 最寄駅 |
東京メトロ銀座線 三越前駅 5分 東京メトロ日比谷線 人形町駅 5分 |
| 竣工 | 2011年3月 |
| 階数 | 地上10階建て |
| エレベーター | 2基 |
賃貸条件
| 募集区画 | 6階 |
|---|---|
| 賃料 (共益費) | 相談(賃料に含む) |
| 敷金 /礼金 | 相談/1ヶ月 |
|
保証金
/敷引/償却 |
-/-/10% |
| 面積 | 68.17坪 |
| 入居条件 | 2026年8月下旬 |