03-6264-1890
受付時間 9:00 - 18:30 定休日 土日祝
受付時間 9:00 - 18:30 定休日 土日祝
赤坂2丁目アネックス 3階
物件情報
| 所在地 | 東京都港区赤坂2丁目19-8 |
|---|---|
| 最寄駅 |
東京メトロ銀座線 溜池山王駅 3分 東京メトロ南北線 六本木一丁目駅 4分 |
| 竣工 | 1984年6月 |
| 階数 | 地上7階 / 地下1階 |
| エレベーター | 1基 |
賃貸条件
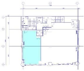
| 募集区画 | 3階 |
|---|---|
| 賃料 (共益費) | 相談(相談) |
| 敷金 /礼金 | 相談/- |
|
保証金
/敷引/償却 |
なし |
| 面積 | 19.3坪 |
| 入居条件 | 2026年10月中旬 |