03-6264-1890
受付時間 9:00 - 18:30 定休日 土日祝
受付時間 9:00 - 18:30 定休日 土日祝
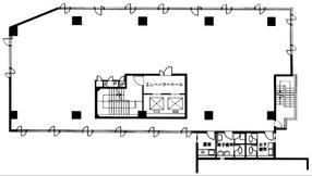
第3山田ビル 6階
物件情報
| 所在地 | 東京都新宿区愛住町22 第3山田ビル |
|---|---|
| 最寄駅 |
都営新宿線 曙橋駅 3分 東京メトロ丸ノ内線 四谷三丁目駅 6分 都営大江戸線 若松河田駅 10分 |
| 竣工 | 1987年10月 |
| 階数 | 地上11階建て |
| エレベーター | 2基 |
賃貸条件
| 募集区画 | 6階 |
|---|---|
| 賃料 (共益費) | 1,420,440円(賃料に含む) |
| 敷金 /礼金 | 10ヶ月/なし |
|
保証金
/敷引/償却 |
-/-/1ヶ月 |
| 面積 | 101.46坪 |
| 入居条件 | 2026年6月上旬 |