03-6264-1890
受付時間 9:00 - 18:30 定休日 土日祝
受付時間 9:00 - 18:30 定休日 土日祝
DeLCCS新宿御苑ビル(旧:伊藤総業ビル) 6階
物件情報
| 所在地 | 東京都新宿区四谷4丁目25 |
|---|---|
| 最寄駅 |
東京メトロ丸ノ内線 新宿御苑前駅 6分 東京メトロ丸ノ内線 四谷三丁目駅 8分 |
| 竣工 | 1986年12月 |
| 階数 | 地上6階 / 地下1階 |
| エレベーター | 1基 |
賃貸条件
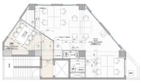
| 募集区画 | 6階 |
|---|---|
| 賃料 (共益費) | 477,400円(賃料に含む) |
| 敷金 /礼金 | 3ヶ月/なし |
|
保証金
/敷引/償却 |
-/-/なし |
| 面積 | 21.7坪 |
| 入居条件 | 2026年6月中旬 |