03-6264-1890
受付時間 9:00 - 18:30 定休日 土日祝
受付時間 9:00 - 18:30 定休日 土日祝
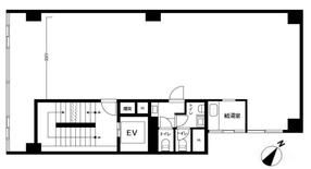
belle汐留 2階
物件情報
| 所在地 | 東京都港区東新橋1丁目2-14 |
|---|---|
| 最寄駅 |
東京メトロ銀座線 新橋駅 1分 都営大江戸線 汐留駅 1分 |
| 竣工 | 1970年4月 |
| 階数 | 地上8階 / 地下1階 |
| エレベーター | 1基 |
賃貸条件
| 募集区画 | 2階 |
|---|---|
| 賃料 (共益費) | 459,000円(85,000円) |
| 敷金 /礼金 | -/なし |
|
保証金
/敷引/償却 |
2ヶ月/-/1ヶ月 |
| 面積 | 34.0坪 |
| 入居条件 | 2026年5月上旬 |