03-6264-1890
受付時間 9:00 - 18:30 定休日 土日祝
受付時間 9:00 - 18:30 定休日 土日祝
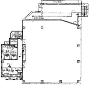
HF青葉台ビル 4階
物件情報
| 所在地 | 東京都目黒区青葉台3丁目6-16 |
|---|---|
| 最寄駅 |
東急田園都市線 池尻大橋駅 7分 京王井の頭線 神泉駅 8分 東京メトロ日比谷線 中目黒駅 15分 |
| 竣工 | 2009年1月 |
| 階数 | 地上8階建て |
| エレベーター | 2基 |
賃貸条件
| 募集区画 | 4階 |
|---|---|
| 賃料 (共益費) | 相談(賃料に含む) |
| 敷金 /礼金 | 10ヶ月/なし |
|
保証金
/敷引/償却 |
-/-/なし |
| 面積 | 119.34坪 |
| 入居条件 | 2026年7月上旬 |