03-6264-1890
受付時間 9:00 - 18:30 定休日 土日祝
受付時間 9:00 - 18:30 定休日 土日祝
合人社東京秋葉原ビル(旧:THE GATE AKIHABARA・フォアサイトビル) 1階102
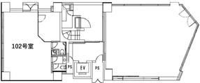
物件情報
| 所在地 | 東京都千代田区岩本町3丁目5-2 |
|---|---|
| 最寄駅 |
都営新宿線 岩本町駅 3分 東京メトロ日比谷線 秋葉原駅 4分 総武線(快速) 馬喰町駅 10分 |
| 竣工 | 1985年5月 |
| 階数 | 地上9階建て |
| エレベーター | 1基 |
賃貸条件
| 募集区画 | 1階102 |
|---|---|
| 賃料 (共益費) | 397,210円(賃料に含む) |
| 敷金 /礼金 | 6ヶ月/なし |
|
保証金
/敷引/償却 |
-/-/なし |
| 面積 | 17.27坪 |
| 入居条件 | 2026年6月中旬 |