03-6264-1890
受付時間 9:00 - 18:30 定休日 土日祝
受付時間 9:00 - 18:30 定休日 土日祝
神田大木ビル 9階
物件情報
| 所在地 | 東京都千代田区神田鍛冶町3丁目3 |
|---|---|
| 最寄駅 |
JR山手線 神田駅 1分 |
| 竣工 | 1966年8月 |
| 階数 | 地上9階 / 地下2階 |
| エレベーター | 2基 |
賃貸条件
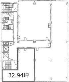
| 募集区画 | 9階 |
|---|---|
| 賃料 (共益費) | 相談(542,963円) |
| 敷金 /礼金 | 12ヶ月/- |
|
保証金
/敷引/償却 |
なし |
| 面積 | 144.79坪 |
| 入居条件 | 相談 |
| 所在地 | 東京都千代田区神田鍛冶町3丁目3 |
|---|---|
| 最寄駅 |
JR山手線 神田駅 1分 |
| 竣工 | 1966年8月 |
| 階数 | 地上9階 / 地下2階 |
| エレベーター | 2基 |
| 募集区画 | 9階 |
|---|---|
| 賃料 (共益費) | 相談(542,963円) |
| 敷金 /礼金 | 12ヶ月/- |
|
保証金
/敷引/償却 |
なし |
| 面積 | 144.79坪 |
| 入居条件 | 相談 |