03-6264-1890
受付時間 9:00 - 18:30 定休日 土日祝
受付時間 9:00 - 18:30 定休日 土日祝
住友生命茅場町ビル 6階
物件情報
| 所在地 | 東京都中央区日本橋茅場町2丁目10-5 |
|---|---|
| 最寄駅 |
東京メトロ日比谷線 茅場町駅 1分 東京メトロ日比谷線 八丁堀駅 4分 東京メトロ銀座線 日本橋駅 7分 |
| 竣工 | 1990年7月 |
| 階数 | 地上8階 / 地下1階 |
| エレベーター | 3基 |
賃貸条件
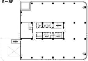
| 募集区画 | 6階 |
|---|---|
| 賃料 (共益費) | 相談(賃料に含む) |
| 敷金 /礼金 | 相談/- |
|
保証金
/敷引/償却 |
なし |
| 面積 | 58.15坪 |
| 入居条件 | 即入居 |