03-6264-1890
受付時間 9:00 - 18:30 定休日 土日祝
受付時間 9:00 - 18:30 定休日 土日祝
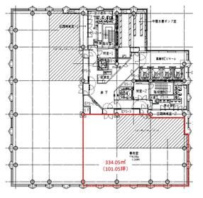
日土地西新宿ビル 17階
物件情報
| 所在地 | 東京都新宿区西新宿6丁目10-1 |
|---|---|
| 最寄駅 |
東京メトロ丸ノ内線 西新宿駅 3分 都営大江戸線 都庁前駅 6分 都営大江戸線 西新宿五丁目駅 10分 東京メトロ丸ノ内線 中野坂上駅 10分 都営大江戸線 新宿西口駅 10分 |
| 竣工 | 2002年11月 |
| 階数 | 地上23階 / 地下2階 |
| エレベーター | 8基 |
賃貸条件
| 募集区画 | 17階 |
|---|---|
| 賃料 (共益費) | 相談(賃料に含む) |
| 敷金 /礼金 | 12ヶ月/- |
|
保証金
/敷引/償却 |
なし |
| 面積 | 101.05坪 |
| 入居条件 | 2026年7月上旬 |