03-6264-1890
受付時間 9:00 - 18:30 定休日 土日祝
受付時間 9:00 - 18:30 定休日 土日祝
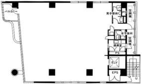
新宿内野ビルⅡ 2階
物件情報
| 所在地 | 東京都新宿区新宿1丁目36-7 |
|---|---|
| 最寄駅 |
東京メトロ丸ノ内線 新宿御苑前駅 3分 都営新宿線 新宿三丁目駅 5分 東京メトロ副都心線 新宿三丁目駅 5分 JR中央線(快速) 新宿駅 13分 JR山手線 新宿駅 13分 |
| 竣工 | 1992年3月 |
| 階数 | 地上10階建て |
| エレベーター | 1基 |
賃貸条件
| 募集区画 | 2階 |
|---|---|
| 賃料 (共益費) | 789,900円(賃料に含む) |
| 敷金 /礼金 | 10ヶ月/なし |
|
保証金
/敷引/償却 |
-/-/10% |
| 面積 | 52.66坪 |
| 入居条件 | 2026年8月上旬 |