03-6264-1890
受付時間 9:00 - 18:30 定休日 土日祝
受付時間 9:00 - 18:30 定休日 土日祝
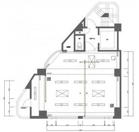
日東本石町ビル 4階
物件情報
| 所在地 | 東京都中央区日本橋本石町4丁目5-1 |
|---|---|
| 最寄駅 |
JR山手線 神田駅 3分 総武線(快速) 新日本橋駅 3分 東京メトロ銀座線 三越前駅 3分 |
| 竣工 | 1991年10月 |
| 階数 | 地上8階建て |
| エレベーター | 1基 |
賃貸条件
| 募集区画 | 4階 |
|---|---|
| 賃料 (共益費) | 292,040円(20,860円) |
| 敷金 /礼金 | 5ヶ月/なし |
|
保証金
/敷引/償却 |
-/-/なし |
| 面積 | 20.86坪 |
| 入居条件 | 2026年6月上旬 |