03-6264-1890
受付時間 9:00 - 18:30 定休日 土日祝
受付時間 9:00 - 18:30 定休日 土日祝
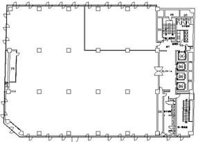
日本生命東八重洲ビル 9階
物件情報
| 所在地 | 東京都中央区八丁堀2丁目6-1 |
|---|---|
| 最寄駅 |
東京メトロ日比谷線 八丁堀駅 3分 JR京葉線 八丁堀駅 4分 JR山手線 東京駅 10分 |
| 竣工 | 1964年 |
| 階数 | 地上9階 / 地下5階 |
| エレベーター | 4基 |
賃貸条件
| 募集区画 | 9階 |
|---|---|
| 賃料 (共益費) | 相談(相談) |
| 敷金 /礼金 | 12ヶ月/- |
|
保証金
/敷引/償却 |
なし |
| 面積 | 254.2坪 |
| 入居条件 | 2027年2月上旬 |