03-6264-1890
受付時間 9:00 - 18:30 定休日 土日祝
受付時間 9:00 - 18:30 定休日 土日祝
品川シーサイドサウスタワー 2階a+b
物件情報
| 所在地 | 東京都品川区東品川4丁目12-1 |
|---|---|
| 最寄駅 |
りんかい線 品川シーサイド駅 2分 京急本線 青物横丁駅 8分 京急本線 鮫洲駅 10分 |
| 竣工 | 2004年8月 |
| 階数 | 地上18階 / 地下1階 |
| エレベーター | 11基 |
賃貸条件
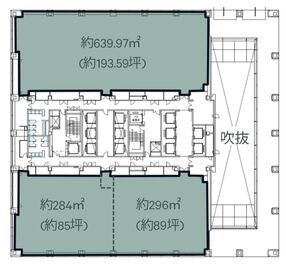
| 募集区画 | 2階a+b |
|---|---|
| 賃料 (共益費) | 相談(賃料に含む) |
| 敷金 /礼金 | 相談/- |
|
保証金
/敷引/償却 |
なし |
| 面積 | 387.18坪 |
| 入居条件 | 即入居 |