03-6264-1890
受付時間 9:00 - 18:30 定休日 土日祝
受付時間 9:00 - 18:30 定休日 土日祝
YMG新橋ビル 9階
物件情報
| 所在地 | 東京都港区新橋5丁目13-4 |
|---|---|
| 最寄駅 |
JR山手線 新橋駅 5分 東京メトロ銀座線 新橋駅 7分 |
| 竣工 | 1986年1月 |
| 階数 | 地上9階 / 地下1階 |
| エレベーター | 1基 |
賃貸条件
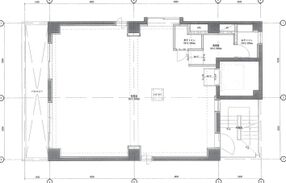
| 募集区画 | 9階 |
|---|---|
| 賃料 (共益費) | 367,500円(80,850円) |
| 敷金 /礼金 | -/なし |
|
保証金
/敷引/償却 |
-/-/2ヶ月 |
| 面積 | 24.5坪 |
| 入居条件 | 即入居 |